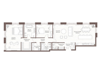
2-Комнатная квартира, 152.55 м², ID 731238
Обновлено Сегодня, 11:04
450 022 496 ₽
2 950 000 ₽ / м2
- Срок сдачи
- II квартал 2026
- Застройщик
- нет данных
- Общая площадь
- 152.55 м2
- Площадь кухни
- 152.55 м2
- Этаж
- 5 из 7
- Отделка
- не указана
- ID
- 731238
Расположение
Описание
Двухкомнатная квартира, 152.55 м2 в Жилой дом Кло 17 от
Продается двухкомнатная квартира в новостройке Жилой дом Кло 17 за 450 022 496 р, находящаяся по адресу Москва, Центральный (ЦАО), Арбат, Староваганьковский пер, д 17 стр 1. Застройщик дома MR Group. Квартира сдается в II квартале 2026 года в 5 минутах пешком от станции метрополитена Арбатская. Общая площадь квартиры - 152.55 м². Этаж 5 из 7. ID квартиры на СтройкиРУ 731238, назовите его когда будете звонить.
























