2-Комнатная квартира, 51 м², ID 412177
Обновлено Сегодня, 05:44
18 350 000 ₽
359 804 ₽ / м2
Расположение
Описание
Двухкомнатная квартира, 51 м2 в ЖК Юнино от
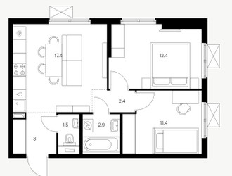
Продается двухкомнатная квартира в новостройке ЖК Юнино по цене 18 350 000 рублей, расположенная по адресу Москва, Новомосковский (НАО), Щербинка, Мостотреста 10. Компания застройщик «ПИК». Квартира сдается в III квартале 2026 года с чистовой отделкой, в 18 минутах на машине от метро Улица Скобелевская. Общая площадь квартиры - 51 м². Этаж 13. ID квартиры на СтройкиРУ 412177, сообщите его когда будете звонить.
Подробнее о ЖК Юнино
Особенности
Ход строительства
Документация
- Проектная декларация № 77-002802, корпус 1.1 05.06.2023840.02 кб, pdf
- Градостроительный план земельного участка, корпус 1.1 09.02.2023586.77 кб, pdf
- Извещение о начале строительства, корпус 1.1 13.01.20234.18 мб, pdf
- Проект договора участия в долевом строительстве, корпус 1.1 29.12.2022193.09 кб, pdf
- Разрешение на строительство 77-228000-004-2022, корпус 1.1 27.12.20221.24 мб, pdf
- Экспертиза проектной документации, корпус 1.1 23.12.20221.28 мб, pdf
- Схема планировочной организации земельного участка, корпус 1.1 19.12.20222.01 мб, pdf





















