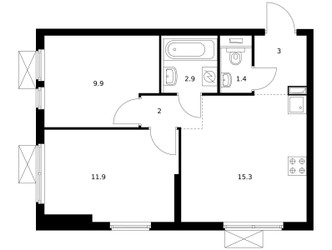
2-Комнатная квартира, 45.4 м², ID 586686
Обновлено 3 недели назад

23 041 000 ₽
507 511 ₽ / м2
- Срок сдачи
- II квартал 2025
- Застройщик
- нет данных
- Общая площадь
- 45.4 м2
- Площадь кухни
- 15.3 м2
- Высота потолков
- 2.6 м
- Этаж
- 33 из 33
- Корпус
- 1.3
- Отделка
- не указана
- Санузел
- Раздельный
- ID
- 586686
Расположение
Описание
Двухкомнатная квартира, 45.4 м2 в ЖК Второй Нагатинский от
Продается 2-комн. квартира в новостройке ЖК Второй Нагатинский за 23 041 000 ₽, находящаяся по адресу Москва, Южный (ЮАО), Нагатино-Садовники, 2-й Нагатинский проезд, д 2 стр 1. Строится компанией «ПИК». Квартира сдается в 2 квартале 2025 года в 15 минутах пешком от станции метрополитена Нагатинская. Общая площадь квартиры - 45.4 кв. м. Этаж 33. ID квартиры на СтройкиРУ 586686, назовите его когда будете звонить.
Подробнее о ЖК Второй Нагатинский
Особенности
Ход строительства
Документация
- Проектная декларация № 77-002499, корпус 7 02.06.2023636.92 кб, pdf
- Проект договора участия в долевом строительстве, корпус 7 30.12.2022196.18 кб, pdf
- Извещение о начале строительства, корпус 7 16.05.2022223.07 кб, pdf
- Схема планировочной организации земельного участка, корпус 7 12.04.20225.89 мб, pdf
- Градостроительный план земельного участка, корпус 7 12.04.20221.90 мб, pdf
- Разрешение на строительство 77-163000-020118-2022, корпус 7 06.04.20221.83 мб, pdf
- Экспертиза проектной документации, корпус 7 30.12.2021709.70 кб, pdf
- Проектная декларация № 77-002549, корпус 1.4 02.06.2023736.47 кб, pdf
- Проект договора участия в долевом строительстве, корпус 1.4 30.12.2022197.92 кб, pdf
- Экспертиза проектной документации, корпус 1.4 14.10.20229.16 мб, pdf
- Извещение о начале строительства, корпус 1.4 10.06.202284.86 кб, pdf
- Разрешение на строительство 77-163000-020183-2022, корпус 1.4 29.04.20221.70 мб, pdf
- Градостроительный план земельного участка, корпус 1.4 18.04.20222.52 мб, pdf
- Схема планировочной организации земельного участка, корпус 1.4 18.04.202210.46 мб, pdf
- Проектная декларация № 77-002549, корпус 1.2 02.06.2023736.47 кб, pdf
- Проект договора участия в долевом строительстве, корпус 1.2 30.12.2022197.92 кб, pdf
- Экспертиза проектной документации, корпус 1.2 14.10.20229.16 мб, pdf
- Извещение о начале строительства, корпус 1.2 10.06.202284.86 кб, pdf
- Разрешение на строительство 77-163000-020183-2022, корпус 1.2 29.04.20221.70 мб, pdf
- Градостроительный план земельного участка, корпус 1.2 18.04.20222.52 мб, pdf
- Схема планировочной организации земельного участка, корпус 1.2 18.04.202210.46 мб, pdf
- Проектная декларация № 77-002549, корпус 1.5 02.06.2023736.47 кб, pdf
- Проект договора участия в долевом строительстве, корпус 1.5 30.12.2022197.92 кб, pdf
- Экспертиза проектной документации, корпус 1.5 14.10.20229.16 мб, pdf
- Извещение о начале строительства, корпус 1.5 10.06.202284.86 кб, pdf
- Разрешение на строительство 77-163000-020183-2022, корпус 1.5 29.04.20221.70 мб, pdf
- Схема планировочной организации земельного участка, корпус 1.5 18.04.202210.46 мб, pdf
- Градостроительный план земельного участка, корпус 1.5 18.04.20222.52 мб, pdf
- Проектная декларация № 77-002549, корпус 1.3 02.06.2023736.47 кб, pdf
- Проект договора участия в долевом строительстве, корпус 1.3 30.12.2022197.92 кб, pdf
- Экспертиза проектной документации, корпус 1.3 14.10.20229.16 мб, pdf
- Извещение о начале строительства, корпус 1.3 10.06.202284.86 кб, pdf
- Разрешение на строительство 77-163000-020183-2022, корпус 1.3 29.04.20221.70 мб, pdf
- Схема планировочной организации земельного участка, корпус 1.3 18.04.202210.46 мб, pdf
- Градостроительный план земельного участка, корпус 1.3 18.04.20222.52 мб, pdf
- Проектная декларация № 77-002499, корпус 6 02.06.2023636.92 кб, pdf
- Проект договора участия в долевом строительстве, корпус 6 30.12.2022196.18 кб, pdf
- Извещение о начале строительства, корпус 6 16.05.2022223.07 кб, pdf
- Градостроительный план земельного участка, корпус 6 12.04.20221.90 мб, pdf
- Схема планировочной организации земельного участка, корпус 6 12.04.20225.89 мб, pdf
- Разрешение на строительство 77-163000-020118-2022, корпус 6 06.04.20221.83 мб, pdf
- Экспертиза проектной документации, корпус 6 30.12.2021709.70 кб, pdf
- Проектная декларация № 77-002499, корпус 5 02.06.2023636.92 кб, pdf
- Проект договора участия в долевом строительстве, корпус 5 30.12.2022196.18 кб, pdf
- Извещение о начале строительства, корпус 5 16.05.2022223.07 кб, pdf
- Схема планировочной организации земельного участка, корпус 5 12.04.20225.89 мб, pdf
- Градостроительный план земельного участка, корпус 5 12.04.20221.90 мб, pdf
- Разрешение на строительство 77-163000-020118-2022, корпус 5 06.04.20221.83 мб, pdf
- Экспертиза проектной документации, корпус 5 30.12.2021709.70 кб, pdf
- Проектная декларация № 77-002549, корпус 1.1 02.06.2023736.47 кб, pdf
- Проект договора участия в долевом строительстве, корпус 1.1 30.12.2022197.92 кб, pdf
- Экспертиза проектной документации, корпус 1.1 14.10.20229.16 мб, pdf
- Извещение о начале строительства, корпус 1.1 10.06.202284.86 кб, pdf
- Разрешение на строительство 77-163000-020183-2022, корпус 1.1 29.04.20221.70 мб, pdf
- Градостроительный план земельного участка, корпус 1.1 18.04.20222.52 мб, pdf
- Схема планировочной организации земельного участка, корпус 1.1 18.04.202210.46 мб, pdf
- Проектная декларация № 77-002287, корпус 4 02.06.2023783.46 кб, pdf
- Проект договора участия в долевом строительстве, корпус 4 30.12.2022203.03 кб, pdf
- Схема планировочной организации земельного участка, корпус 4 20.12.20226.40 мб, pdf
- Экспертиза проектной документации, корпус 4 19.12.2022621.03 кб, pdf
- Извещение о начале строительства, корпус 4 09.07.2021218.87 кб, pdf
- Градостроительный план земельного участка, корпус 4 08.06.20211.50 мб, pdf
- Разрешение на строительство 77-163000-019150-2020, корпус 4 25.09.20201.08 мб, pdf
- Проектная декларация № 77-002287, корпус 3 02.06.2023783.46 кб, pdf
- Проект договора участия в долевом строительстве, корпус 3 30.12.2022203.03 кб, pdf
- Схема планировочной организации земельного участка, корпус 3 20.12.20226.40 мб, pdf
- Экспертиза проектной документации, корпус 3 19.12.2022621.03 кб, pdf
- Извещение о начале строительства, корпус 3 09.07.2021218.87 кб, pdf
- Градостроительный план земельного участка, корпус 3 08.06.20211.50 мб, pdf
- Разрешение на строительство 77-163000-019150-2020, корпус 3 25.09.20201.08 мб, pdf
- Проектная декларация № 77-002287, корпус 2 02.06.2023783.46 кб, pdf
- Проект договора участия в долевом строительстве, корпус 2 30.12.2022203.03 кб, pdf
- Схема планировочной организации земельного участка, корпус 2 20.12.20226.40 мб, pdf
- Экспертиза проектной документации, корпус 2 19.12.2022621.03 кб, pdf
- Извещение о начале строительства, корпус 2 09.07.2021218.87 кб, pdf
- Градостроительный план земельного участка, корпус 2 08.06.20211.50 мб, pdf
- Разрешение на строительство 77-163000-019150-2020, корпус 2 25.09.20201.08 мб, pdf
- Проектная декларация № 77-002287, корпус 1 02.06.2023783.46 кб, pdf
- Проект договора участия в долевом строительстве, корпус 1 30.12.2022203.03 кб, pdf
- Схема планировочной организации земельного участка, корпус 1 20.12.20226.40 мб, pdf
- Экспертиза проектной документации, корпус 1 19.12.2022621.03 кб, pdf
- Извещение о начале строительства, корпус 1 09.07.2021218.87 кб, pdf
- Градостроительный план земельного участка, корпус 1 08.06.20211.50 мб, pdf
- Разрешение на строительство 77-163000-019150-2020, корпус 1 25.09.20201.08 мб, pdf
































