4+ Комнатные апартаменты, 195 м², ID 708463
Обновлено Сегодня, 03:50
210 492 752 ₽
1 079 450 ₽ / м2
- Срок сдачи
- III квартал 2024
- Застройщик
- нет данных
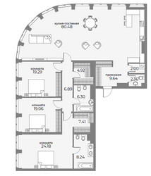
- Общая площадь
- 195 м2
- Площадь кухни
- 195 м2
- Этаж
- 16 из 20
- Корпус
- 5
- Отделка
- Чистовая
- ID
- 708463
Расположение
Описание
4+ Комнатные апартаменты, 195 м2 в ЖК Sky View (Скай Вью) от
Продаются 4+ комн. апартаменты в новостройке ЖК Sky View (Скай Вью) за 210 492 752 руб, находящиеся по адресу Москва, Центральный (ЦАО), Пресненский, ул Дружинниковская, д 15. Застройщик Киноцентр. Апартаменты сдаются в 3 квартале 2024 года с чистовой отделкой, в 5 минутах пешком от станции метрополитена Краснопресненская. Общая площадь апартаментов - 195 кв. м. Этаж 16 из 20. ID апартаментов на СтройкиРУ 708463, назовите его когда будете звонить.
Подробнее о ЖК Sky View (Скай Вью)
Особенности
Ход строительства
1 упоминание о ЖК Sky View (Скай Вью) в наших материалах




















