4+ Комнатные апартаменты, 150.7 м², ID 708453
Обновлено Сегодня, 03:25
173 475 008 ₽
1 151 128 ₽ / м2
- Срок сдачи
- III квартал 2024
- Застройщик
- нет данных
- Общая площадь
- 150.7 м2
- Площадь кухни
- 150.7 м2
- Этаж
- 14 из 20
- Корпус
- 5
- Отделка
- Чистовая
- ID
- 708453
Расположение
Описание
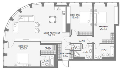
4+ Комнатные апартаменты, 150.7 м2 в ЖК Sky View (Скай Вью) от
Продаются 4+ комн. апартаменты в новостройке ЖК Sky View (Скай Вью) по цене 173 475 008 руб, расположенные по адресу Москва, Центральный (ЦАО), Пресненский, ул Дружинниковская, д 15. Застройщик Киноцентр. Апартаменты сдаются в 3 квартале 2024 года с чистовой отделкой, в 5 минутах пешком от метро Краснопресненская. Общая площадь апартаментов - 150.7 кв. м. Этаж 14 из 20. ID апартаментов на СтройкиРУ 708453, сообщите его когда будете звонить.
Подробнее о ЖК Sky View (Скай Вью)
Особенности
Ход строительства
1 упоминание о ЖК Sky View (Скай Вью) в наших материалах




















