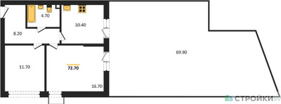
2-Комнатная квартира, 72.7 м², ID 400641
Обновлено 6 дня назад
31 794 618 ₽
437 340 ₽ / м2
- Срок сдачи
- III квартал 2026
- Застройщик
- нет данных
- Общая площадь
- 72.7 м2
- Жилая площадь
- 28.4 м2
- Площадь кухни
- 10.4 м2
- Высота потолков
- 2.95 м
- Этаж
- 2 из 16
- Корпус
- 18.1
- Отделка
- Черновая
- Санузел
- Совмещенный
- ID
- 400641
Расположение
Описание
Двухкомнатная квартира, 72.7 м2 в ЖК Скандинавия от
Продается двухкомнатная квартира в новостройке ЖК Скандинавия по цене 31 794 618 рублей, расположенная по адресу Москва, Новомосковский (НАО), Сосенское, поселение Сосенское, деревня Бачурино, д 13 к 3. Компания застройщик А101. Квартира сдается в III квартале 2026 года с черновой отделкой, в 23 минутах пешком от метро Коммунарка. Общая площадь квартиры - 72.7 м². Этаж 2 из 19. ID квартиры на СтройкиРУ 400641, сообщите его когда будете звонить.
Подробнее о ЖК Скандинавия
Особенности
Ход строительства
Документация
- Проектная декларация № 77-002734, корпус 27.3 12.06.2023475.97 кб, pdf
- Извещение о начале строительства, корпус 27.3 03.10.20223.46 мб, pdf
- Проект договора участия в долевом строительстве, корпус 27.3 12.09.20221.13 мб, pdf
- Схема планировочной организации земельного участка, корпус 27.3 31.08.20229.00 мб, pdf
- Градостроительный план земельного участка, корпус 27.3 31.08.20222.14 мб, pdf
- Разрешение на строительство 77-245000-020403-2022, корпус 27.3 30.08.2022177.11 кб, pdf
- Экспертиза проектной документации, корпус 27.3 07.04.2022576.02 кб, pdf
- Проектная декларация № 77-002654, корпус 36.1.2 12.06.2023319.89 кб, pdf
- Извещение о начале строительства, корпус 36.1.2 10.11.20223.00 мб, pdf
- Проект договора участия в долевом строительстве, корпус 36.1.2 29.07.20221.13 мб, pdf
- Схема планировочной организации земельного участка, корпус 36.1.2 26.07.202213.59 мб, pdf
- Разрешение на строительство 77-245000-020334-2022, корпус 36.1.2 18.07.2022108.42 кб, pdf
- Экспертиза проектной документации, корпус 36.1.2 08.07.20221.22 мб, pdf
- Градостроительный план земельного участка, корпус 36.1.2 20.06.20225.12 мб, pdf
- Проектная декларация № 77-002654, корпус 36.1.1 12.06.2023319.89 кб, pdf
- Извещение о начале строительства, корпус 36.1.1 10.11.20223.00 мб, pdf
- Проект договора участия в долевом строительстве, корпус 36.1.1 29.07.20221.13 мб, pdf
- Схема планировочной организации земельного участка, корпус 36.1.1 26.07.202213.59 мб, pdf
- Разрешение на строительство 77-245000-020334-2022, корпус 36.1.1 18.07.2022108.42 кб, pdf
- Экспертиза проектной документации, корпус 36.1.1 08.07.20221.22 мб, pdf
- Градостроительный план земельного участка, корпус 36.1.1 20.06.20225.12 мб, pdf
- Проектная декларация № 77-002712, корпус 35.1.4 12.06.2023474.00 кб, pdf
- Извещение о начале строительства, корпус 35.1.4 28.11.20222.92 мб, pdf
- Проект договора участия в долевом строительстве, корпус 35.1.4 12.09.20221.13 мб, pdf
- Градостроительный план земельного участка, корпус 35.1.4 23.08.20225.12 мб, pdf
- Схема планировочной организации земельного участка, корпус 35.1.4 23.08.20227.83 мб, pdf
- Разрешение на строительство 77-245000-020373-2022, корпус 35.1.4 10.08.20221.91 мб, pdf
- Экспертиза проектной документации, корпус 35.1.4 04.08.20221.15 мб, pdf
- Проектная декларация № 77-002712, корпус 35.1.3 12.06.2023474.00 кб, pdf
- Извещение о начале строительства, корпус 35.1.3 28.11.20222.92 мб, pdf
- Проект договора участия в долевом строительстве, корпус 35.1.3 12.09.20221.13 мб, pdf
- Градостроительный план земельного участка, корпус 35.1.3 23.08.20225.12 мб, pdf
- Схема планировочной организации земельного участка, корпус 35.1.3 23.08.20227.83 мб, pdf
- Разрешение на строительство 77-245000-020373-2022, корпус 35.1.3 10.08.20221.91 мб, pdf
- Экспертиза проектной документации, корпус 35.1.3 04.08.20221.15 мб, pdf
- Проектная декларация № 77-002712, корпус 35.1.2 12.06.2023474.00 кб, pdf
- Извещение о начале строительства, корпус 35.1.2 28.11.20222.92 мб, pdf
- Проект договора участия в долевом строительстве, корпус 35.1.2 12.09.20221.13 мб, pdf
- Градостроительный план земельного участка, корпус 35.1.2 23.08.20225.12 мб, pdf
- Схема планировочной организации земельного участка, корпус 35.1.2 23.08.20227.83 мб, pdf
- Разрешение на строительство 77-245000-020373-2022, корпус 35.1.2 10.08.20221.91 мб, pdf
- Экспертиза проектной документации, корпус 35.1.2 04.08.20221.15 мб, pdf
- Проектная декларация № 77-002712, корпус 35.1.1 12.06.2023474.00 кб, pdf
- Извещение о начале строительства, корпус 35.1.1 28.11.20222.92 мб, pdf
- Проект договора участия в долевом строительстве, корпус 35.1.1 12.09.20221.13 мб, pdf
- Градостроительный план земельного участка, корпус 35.1.1 23.08.20225.12 мб, pdf
- Схема планировочной организации земельного участка, корпус 35.1.1 23.08.20227.83 мб, pdf
- Разрешение на строительство 77-245000-020373-2022, корпус 35.1.1 10.08.20221.91 мб, pdf
- Экспертиза проектной документации, корпус 35.1.1 04.08.20221.15 мб, pdf
- Проектная декларация № 77-002586, корпус 36.2.2 12.06.2023304.03 кб, pdf
- Извещение о начале строительства, корпус 36.2.2 19.09.20224.74 мб, pdf
- Проект договора участия в долевом строительстве, корпус 36.2.2 30.06.2022644.99 кб, pdf
- Градостроительный план земельного участка, корпус 36.2.2 20.06.20225.12 мб, pdf
- Схема планировочной организации земельного участка, корпус 36.2.2 20.06.202229.88 мб, pdf
- Разрешение на строительство 77-245000-020282-2022, корпус 36.2.2 17.06.20221.70 мб, pdf
- Экспертиза проектной документации, корпус 36.2.2 13.05.2022528.52 кб, pdf
- Проектная декларация № 77-002586, корпус 36.2.1 12.06.2023304.03 кб, pdf
- Извещение о начале строительства, корпус 36.2.1 19.09.20224.74 мб, pdf
- Проект договора участия в долевом строительстве, корпус 36.2.1 30.06.2022644.99 кб, pdf
- Градостроительный план земельного участка, корпус 36.2.1 20.06.20225.12 мб, pdf
- Схема планировочной организации земельного участка, корпус 36.2.1 20.06.202229.88 мб, pdf
- Разрешение на строительство 77-245000-020282-2022, корпус 36.2.1 17.06.20221.70 мб, pdf
- Экспертиза проектной документации, корпус 36.2.1 13.05.2022528.52 кб, pdf
- Информация о выданных заключениях о соответствии застройщика и проектной декларации требованиям 214-ФЗ 77-002134 ЗОС/130/77-002134, корпус 22.1 04.12.2020613.82 кб, pdf
- Информация о выданных заключениях о соответствии застройщика и проектной декларации требованиям 214-ФЗ 77-002134 ЗОС/130/77-002134, корпус 22.2 04.12.2020613.82 кб, pdf
- Информация о выданных заключениях о соответствии застройщика и проектной декларации требованиям 214-ФЗ 77-002134 ЗОС/130/77-002134, корпус 22.3 04.12.2020613.82 кб, pdf
- Информация о выданных заключениях о соответствии застройщика и проектной декларации требованиям 214-ФЗ 77-002134 ЗОС/130/77-002134, корпус 22.5 04.12.2020613.82 кб, pdf
- Информация о выданных заключениях о соответствии застройщика и проектной декларации требованиям 214-ФЗ 77-002134 ЗОС/130/77-002134, корпус 22.4 04.12.2020613.82 кб, pdf
- Информация о выданных заключениях о соответствии застройщика и проектной декларации требованиям 214-ФЗ 77-002134 ЗОС/130/77-002134, корпус 15 04.12.2020613.82 кб, pdf
- Информация о выданных заключениях о соответствии застройщика и проектной декларации требованиям 214-ФЗ 77-002134 ЗОС/130/77-002134, корпус 23.7 04.12.2020613.82 кб, pdf
- Информация о выданных заключениях о соответствии застройщика и проектной декларации требованиям 214-ФЗ 77-002134 ЗОС/130/77-002134, корпус 23.6 04.12.2020613.82 кб, pdf
- Информация о выданных заключениях о соответствии застройщика и проектной декларации требованиям 214-ФЗ 77-002134 ЗОС/130/77-002134, корпус 23.4 04.12.2020613.82 кб, pdf
- Информация о выданных заключениях о соответствии застройщика и проектной декларации требованиям 214-ФЗ 77-002134 ЗОС/130/77-002134, корпус 23.3 04.12.2020613.82 кб, pdf
- Информация о выданных заключениях о соответствии застройщика и проектной декларации требованиям 214-ФЗ 77-002134 ЗОС/130/77-002134, корпус 23.2 04.12.2020613.82 кб, pdf
- Информация о выданных заключениях о соответствии застройщика и проектной декларации требованиям 214-ФЗ 77-002134 ЗОС/130/77-002134, корпус 23.1 04.12.2020613.82 кб, pdf
- Информация о выданных заключениях о соответствии застройщика и проектной декларации требованиям 214-ФЗ 77-002134 ЗОС/130/77-002134, корпус 23.5 04.12.2020613.82 кб, pdf
- Информация о выданных заключениях о соответствии застройщика и проектной декларации требованиям 214-ФЗ 77-002134 ЗОС/130/77-002134, корпус 6.1 04.12.2020613.82 кб, pdf
- Информация о выданных заключениях о соответствии застройщика и проектной декларации требованиям 214-ФЗ 77-002134 ЗОС/130/77-002134, корпус ЮГ 15.1 04.12.2020613.82 кб, pdf
- Информация о выданных заключениях о соответствии застройщика и проектной декларации требованиям 214-ФЗ 77-002134 ЗОС/130/77-002134, корпус 17.4 04.12.2020613.82 кб, pdf
- Информация о выданных заключениях о соответствии застройщика и проектной декларации требованиям 214-ФЗ 77-002134 ЗОС/130/77-002134, корпус ЮГ 7.3 04.12.2020613.82 кб, pdf
- Информация о выданных заключениях о соответствии застройщика и проектной декларации требованиям 214-ФЗ 77-002134 ЗОС/130/77-002134, корпус ЮГ 7.4 04.12.2020613.82 кб, pdf
- Информация о выданных заключениях о соответствии застройщика и проектной декларации требованиям 214-ФЗ 77-002134 ЗОС/130/77-002134, корпус ЮГ 8.5 04.12.2020613.82 кб, pdf
- Информация о выданных заключениях о соответствии застройщика и проектной декларации требованиям 214-ФЗ 77-002134 ЗОС/130/77-002134, корпус ЮГ 6.2 04.12.2020613.82 кб, pdf
- Информация о выданных заключениях о соответствии застройщика и проектной декларации требованиям 214-ФЗ 77-002134 ЗОС/130/77-002134, корпус ЮГ 6.4 04.12.2020613.82 кб, pdf
- Проектная декларация № 77-000577, корпус 13.3 09.12.2020630.72 кб, pdf
- Информация о выданных заключениях о соответствии застройщика и проектной декларации требованиям 214-ФЗ 77-002134 ЗОС/130/77-002134, корпус 13.3 04.12.2020613.82 кб, pdf
- Извещение о начале строительства, корпус 13.3 22.05.2020219.15 кб, pdf
- Разрешение на ввод 77-245000-009508-2020, корпус 13.3 20.05.20201.58 мб, pdf
- Заключение о степени готовности 77-245000-013358-2016, корпус 13.3 17.10.2019772.71 кб, pdf
- Экспертиза проектной документации, корпус 13.3 26.08.201915.17 мб, pdf
- Схема планировочной организации земельного участка, корпус 13.3 30.09.20184.60 мб, pdf
- Градостроительный план земельного участка, корпус 13.3 30.09.20187.27 мб, pdf
- Проект договора участия в долевом строительстве, корпус 13.3 25.07.2018549.41 кб, pdf
- Разрешение на строительство 77-245000-013358-2016, корпус 13.3 27.09.20162.22 мб, pdf
- Информация о выданных заключениях о соответствии застройщика и проектной декларации требованиям 214-ФЗ 77-002134 ЗОС/130/77-002134, корпус ЮГ 8.3 04.12.2020613.82 кб, pdf
- Информация о выданных заключениях о соответствии застройщика и проектной декларации требованиям 214-ФЗ 77-002134 ЗОС/130/77-002134, корпус 17.2 04.12.2020613.82 кб, pdf
- Информация о выданных заключениях о соответствии застройщика и проектной декларации требованиям 214-ФЗ 77-002134 ЗОС/130/77-002134, корпус 19.1 04.12.2020613.82 кб, pdf
- Информация о выданных заключениях о соответствии застройщика и проектной декларации требованиям 214-ФЗ 77-002134 ЗОС/130/77-002134, корпус ЮГ 6.1 04.12.2020613.82 кб, pdf
- Информация о выданных заключениях о соответствии застройщика и проектной декларации требованиям 214-ФЗ 77-002134 ЗОС/130/77-002134, корпус 17.1 04.12.2020613.82 кб, pdf
- Информация о выданных заключениях о соответствии застройщика и проектной декларации требованиям 214-ФЗ 77-002134 ЗОС/130/77-002134, корпус ЮГ 8.4 04.12.2020613.82 кб, pdf
- Информация о выданных заключениях о соответствии застройщика и проектной декларации требованиям 214-ФЗ 77-002134 ЗОС/130/77-002134, корпус ЮГ 7.2 04.12.2020613.82 кб, pdf
- Информация о выданных заключениях о соответствии застройщика и проектной декларации требованиям 214-ФЗ 77-002134 ЗОС/130/77-002134, корпус ЮГ 7.1 04.12.2020613.82 кб, pdf
- Информация о выданных заключениях о соответствии застройщика и проектной декларации требованиям 214-ФЗ 77-002134 ЗОС/130/77-002134, корпус ЮГ 8.1 04.12.2020613.82 кб, pdf
- Проектная декларация № 77-000577, корпус 13.2 09.12.2020630.72 кб, pdf
- Информация о выданных заключениях о соответствии застройщика и проектной декларации требованиям 214-ФЗ 77-002134 ЗОС/130/77-002134, корпус 13.2 04.12.2020613.82 кб, pdf
- Извещение о начале строительства, корпус 13.2 22.05.2020219.15 кб, pdf
- Разрешение на ввод 77-245000-009508-2020, корпус 13.2 20.05.20201.58 мб, pdf
- Заключение о степени готовности 77-245000-013358-2016, корпус 13.2 17.10.2019772.71 кб, pdf
- Экспертиза проектной документации, корпус 13.2 26.08.201915.17 мб, pdf
- Градостроительный план земельного участка, корпус 13.2 30.09.20187.27 мб, pdf
- Схема планировочной организации земельного участка, корпус 13.2 30.09.20184.60 мб, pdf
- Проект договора участия в долевом строительстве, корпус 13.2 25.07.2018549.41 кб, pdf
- Разрешение на строительство 77-245000-013358-2016, корпус 13.2 27.09.20162.22 мб, pdf
- Проектная декларация № 77-000577, корпус 13.4 09.12.2020630.72 кб, pdf
- Информация о выданных заключениях о соответствии застройщика и проектной декларации требованиям 214-ФЗ 77-002134 ЗОС/130/77-002134, корпус 13.4 04.12.2020613.82 кб, pdf
- Извещение о начале строительства, корпус 13.4 22.05.2020219.15 кб, pdf
- Разрешение на ввод 77-245000-009508-2020, корпус 13.4 20.05.20201.58 мб, pdf
- Заключение о степени готовности 77-245000-013358-2016, корпус 13.4 17.10.2019772.71 кб, pdf
- Экспертиза проектной документации, корпус 13.4 26.08.201915.17 мб, pdf
- Градостроительный план земельного участка, корпус 13.4 30.09.20187.27 мб, pdf
- Схема планировочной организации земельного участка, корпус 13.4 30.09.20184.60 мб, pdf
- Проект договора участия в долевом строительстве, корпус 13.4 25.07.2018549.41 кб, pdf
- Разрешение на строительство 77-245000-013358-2016, корпус 13.4 27.09.20162.22 мб, pdf
- Информация о выданных заключениях о соответствии застройщика и проектной декларации требованиям 214-ФЗ 77-002134 ЗОС/130/77-002134, корпус 18.2 04.12.2020613.82 кб, pdf
- Проектная декларация № 77-000577, корпус 13.1 09.12.2020630.72 кб, pdf
- Информация о выданных заключениях о соответствии застройщика и проектной декларации требованиям 214-ФЗ 77-002134 ЗОС/130/77-002134, корпус 13.1 04.12.2020613.82 кб, pdf
- Извещение о начале строительства, корпус 13.1 22.05.2020219.15 кб, pdf
- Разрешение на ввод 77-245000-009508-2020, корпус 13.1 20.05.20201.58 мб, pdf
- Заключение о степени готовности 77-245000-013358-2016, корпус 13.1 17.10.2019772.71 кб, pdf
- Экспертиза проектной документации, корпус 13.1 26.08.201915.17 мб, pdf
- Градостроительный план земельного участка, корпус 13.1 30.09.20187.27 мб, pdf
- Схема планировочной организации земельного участка, корпус 13.1 30.09.20184.60 мб, pdf
- Проект договора участия в долевом строительстве, корпус 13.1 25.07.2018549.41 кб, pdf
- Разрешение на строительство 77-245000-013358-2016, корпус 13.1 27.09.20162.22 мб, pdf
- Информация о выданных заключениях о соответствии застройщика и проектной декларации требованиям 214-ФЗ 77-002134 ЗОС/130/77-002134, корпус 14.2 04.12.2020613.82 кб, pdf
- Информация о выданных заключениях о соответствии застройщика и проектной декларации требованиям 214-ФЗ 77-002134 ЗОС/130/77-002134, корпус 14.1 04.12.2020613.82 кб, pdf
- Информация о выданных заключениях о соответствии застройщика и проектной декларации требованиям 214-ФЗ 77-002134 ЗОС/130/77-002134, корпус Квартал «Юг», Корпус 14.2 04.12.2020613.82 кб, pdf
- Информация о выданных заключениях о соответствии застройщика и проектной декларации требованиям 214-ФЗ 77-002134 ЗОС/130/77-002134, корпус Квартал «Юг», Корпус 15 04.12.2020613.82 кб, pdf
- Информация о выданных заключениях о соответствии застройщика и проектной декларации требованиям 214-ФЗ 77-002134 ЗОС/130/77-002134, корпус Квартал «Юг», корпус 23.2 04.12.2020613.82 кб, pdf
- Информация о выданных заключениях о соответствии застройщика и проектной декларации требованиям 214-ФЗ 77-002134 ЗОС/130/77-002134, корпус Квартал «Юг», корпус 23.6 04.12.2020613.82 кб, pdf
- Информация о выданных заключениях о соответствии застройщика и проектной декларации требованиям 214-ФЗ 77-002134 ЗОС/130/77-002134, корпус Квартал «Юг», корпус 23.7 04.12.2020613.82 кб, pdf
- Информация о выданных заключениях о соответствии застройщика и проектной декларации требованиям 214-ФЗ 77-002134 ЗОС/130/77-002134, корпус Квартал «Юг», корпус 8.5 04.12.2020613.82 кб, pdf
- Информация о выданных заключениях о соответствии застройщика и проектной декларации требованиям 214-ФЗ 77-002134 ЗОС/130/77-002134, корпус Корпус 16.2 04.12.2020613.82 кб, pdf
- Информация о выданных заключениях о соответствии застройщика и проектной декларации требованиям 214-ФЗ 77-002134 ЗОС/130/77-002134, корпус Квартал «Юг», корпус 7.1 04.12.2020613.82 кб, pdf


















