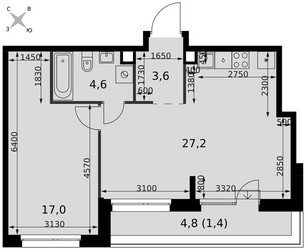
2-Комнатная квартира, 53.8 м², ID 698141
Обновлено Сегодня, 03:12
46 698 400 ₽
868 000 ₽ / м2
- Срок сдачи
- II квартал 2030
- Застройщик
- нет данных
- Общая площадь
- 53.8 м2
- Жилая площадь
- 17 м2
- Площадь кухни
- 53.8 м2
- Этаж
- 25 из 27
- Корпус
- -
- Отделка
- Черновая
- ID
- 698141
Расположение
Описание
Двухкомнатная квартира, 53.8 м2 в ЖК Симоновский вал от
Продается двухкомнатная квартира в новостройке ЖК Симоновский вал по цене 46 698 400 р, расположенная по адресу Москва, Юго-Восточный (ЮВАО), Южнопортовый, ул Новоостаповская, д 6А. Застройщик дома ФСК. Квартира сдается в II квартале 2030 года с черновой отделкой, в 8 минутах пешком от метро Дубровка. Общая площадь квартиры - 53.8 м². Этаж 25 из 27. ID квартиры на СтройкиРУ 698141, сообщите его когда будете звонить.


















