3-Комнатная квартира, 65.7 м², ID 698124
Обновлено Сегодня, 11:41
35 872 200 ₽
546 000 ₽ / м2
- Срок сдачи
- II квартал 2030
- Застройщик
- нет данных
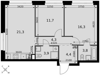
- Общая площадь
- 65.7 м2
- Жилая площадь
- 28 м2
- Площадь кухни
- 65.7 м2
- Этаж
- 14 из 27
- Корпус
- -
- Отделка
- Предчистовая
- ID
- 698124
Расположение
Описание
Трехкомнатная квартира, 65.7 м2 в ЖК Симоновский вал от
Продается трехкомнатная квартира в новостройке ЖК Симоновский вал по цене 35 872 200 рублей, расположенная по адресу Москва, Юго-Восточный (ЮВАО), Южнопортовый, ул Новоостаповская, д 6А. Компания застройщик ФСК. Квартира сдается в II квартале 2030 года с предчистовой отделкой, в 8 минутах пешком от метро Дубровка. Общая площадь квартиры - 65.7 м². Этаж 14 из 27. ID квартиры на СтройкиРУ 698124, сообщите его когда будете звонить.


















