Квартира-студия, 27.1 м², ID 687345
Обновлено Сегодня, 11:41
Расположение
Описание
Студия квартира, 27.1 м2 в ЖК СЕТ от
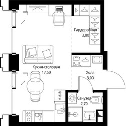
Продается квартира-студия в новостройке ЖК СЕТ за 19 683 408 рублей, находящаяся по адресу Москва, Западный (ЗАО), Можайский, ул Верейская, д 29 стр 32Б. Компания застройщик MR Group. Квартира сдается в III квартале 2028 года в 13 минутах на машине от станции метрополитена Давыдково. Общая площадь квартиры - 27.1 м². Этаж 13 из 59. ID квартиры на СтройкиРУ 687345, назовите его когда будете звонить.


















