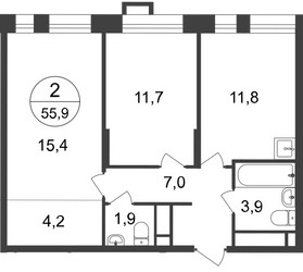
2-Комнатная квартира, 55.9 м², ID 678677
Обновлено Сегодня, 04:17
19 458 034 ₽
348 086 ₽ / м2
- Срок сдачи
- II квартал 2026
- Застройщик
- нет данных
- Общая площадь
- 55.9 м2
- Жилая площадь
- 27.1 м2
- Площадь кухни
- 55.9 м2
- Этаж
- 17 из 25
- Корпус
- 2
- Отделка
- Черновая
- ID
- 678677
Расположение
Описание
Двухкомнатная квартира, 55.9 м2 в ЖК Первый Московский от
Продается двухкомнатная квартира в новостройке ЖК Первый Московский стоимостью 19 458 034 рублей, по адресу Москва, Северо-Западный (СЗАО), Московский, Боровское шоссе 1-й км. Компания застройщик Абсолют. Квартира сдается в IV квартале 2024 года с черновой отделкой, в 5 минутах на машине от станции метро Филатов Луг. Общая площадь квартиры - 55.9 м². Этаж 17 из 20. ID квартиры на СтройкиРУ 678677, скажите его когда будете звонить.
Подробнее о ЖК Первый Московский
Особенности
Ход строительства
Документация
- Проектная декларация № 77-002049, корпус 2 фаза 08.06.20231.81 мб, pdf
- Разрешение на ввод 77-239000-010109-2021, корпус 2 фаза 16.06.20213.84 мб, pdf
- Схема планировочной организации земельного участка, корпус 2 фаза 08.04.202163.36 мб, pdf
- Экспертиза проектной документации, корпус 2 фаза 17.03.20217.50 мб, pdf
- Извещение о начале строительства, корпус 2 фаза 19.08.20207.88 мб, pdf
- Проект договора участия в долевом строительстве, корпус 2 фаза 19.08.2020383.56 кб, pdf
- Градостроительный план земельного участка, корпус 2 фаза 28.07.20207.68 мб, pdf
- Заключение о степени готовности 77-239000-017234-2018, корпус 2 фаза 19.07.2019187.54 кб, pdf
- Информация о выданных заключениях о соответствии застройщика и проектной декларации требованиям 214-ФЗ 77-002049 77-13-380/8, корпус 2 фаза 02.08.2018255.85 кб, pdf
- Разрешение на строительство 77-239000-017234-2018, корпус 2 фаза 05.06.201810.86 мб, pdf
- Проектная декларация № 77-002049, корпус 1 10 ф. 08.06.20231.81 мб, pdf
- Разрешение на ввод 77-239000-010109-2021, корпус 1 10 ф. 16.06.20213.84 мб, pdf
- Схема планировочной организации земельного участка, корпус 1 10 ф. 08.04.202163.36 мб, pdf
- Экспертиза проектной документации, корпус 1 10 ф. 17.03.20217.50 мб, pdf
- Проект договора участия в долевом строительстве, корпус 1 10 ф. 19.08.2020383.56 кб, pdf
- Извещение о начале строительства, корпус 1 10 ф. 19.08.20207.88 мб, pdf
- Градостроительный план земельного участка, корпус 1 10 ф. 28.07.20207.68 мб, pdf
- Заключение о степени готовности 77-239000-017234-2018, корпус 1 10 ф. 19.07.2019187.54 кб, pdf
- Информация о выданных заключениях о соответствии застройщика и проектной декларации требованиям 214-ФЗ 77-002049 77-13-380/8, корпус 1 10 ф. 02.08.2018255.85 кб, pdf
- Разрешение на строительство 77-239000-017234-2018, корпус 1 10 ф. 05.06.201810.86 мб, pdf
- Проектная декларация № 77-002049, корпус 8 10 ф. 08.06.20231.81 мб, pdf
- Разрешение на ввод 77-239000-010109-2021, корпус 8 10 ф. 16.06.20213.84 мб, pdf
- Схема планировочной организации земельного участка, корпус 8 10 ф. 08.04.202163.36 мб, pdf
- Экспертиза проектной документации, корпус 8 10 ф. 17.03.20217.50 мб, pdf
- Извещение о начале строительства, корпус 8 10 ф. 19.08.20207.88 мб, pdf
- Проект договора участия в долевом строительстве, корпус 8 10 ф. 19.08.2020383.56 кб, pdf
- Градостроительный план земельного участка, корпус 8 10 ф. 28.07.20207.68 мб, pdf
- Заключение о степени готовности 77-239000-017234-2018, корпус 8 10 ф. 19.07.2019187.54 кб, pdf
- Информация о выданных заключениях о соответствии застройщика и проектной декларации требованиям 214-ФЗ 77-002049 77-13-380/8, корпус 8 10 ф. 02.08.2018255.85 кб, pdf
- Разрешение на строительство 77-239000-017234-2018, корпус 8 10 ф. 05.06.201810.86 мб, pdf
- Проектная декларация № 77-002049, корпус 4 10 ф. 08.06.20231.81 мб, pdf
- Разрешение на ввод 77-239000-010109-2021, корпус 4 10 ф. 16.06.20213.84 мб, pdf
- Схема планировочной организации земельного участка, корпус 4 10 ф. 08.04.202163.36 мб, pdf
- Экспертиза проектной документации, корпус 4 10 ф. 17.03.20217.50 мб, pdf
- Проект договора участия в долевом строительстве, корпус 4 10 ф. 19.08.2020383.56 кб, pdf
- Извещение о начале строительства, корпус 4 10 ф. 19.08.20207.88 мб, pdf
- Градостроительный план земельного участка, корпус 4 10 ф. 28.07.20207.68 мб, pdf
- Заключение о степени готовности 77-239000-017234-2018, корпус 4 10 ф. 19.07.2019187.54 кб, pdf
- Информация о выданных заключениях о соответствии застройщика и проектной декларации требованиям 214-ФЗ 77-002049 77-13-380/8, корпус 4 10 ф. 02.08.2018255.85 кб, pdf
- Разрешение на строительство 77-239000-017234-2018, корпус 4 10 ф. 05.06.201810.86 мб, pdf
- Проектная декларация № 77-002049, корпус 5 10 ф. 08.06.20231.81 мб, pdf
- Разрешение на ввод 77-239000-010109-2021, корпус 5 10 ф. 16.06.20213.84 мб, pdf
- Схема планировочной организации земельного участка, корпус 5 10 ф. 08.04.202163.36 мб, pdf
- Экспертиза проектной документации, корпус 5 10 ф. 17.03.20217.50 мб, pdf
- Извещение о начале строительства, корпус 5 10 ф. 19.08.20207.88 мб, pdf
- Проект договора участия в долевом строительстве, корпус 5 10 ф. 19.08.2020383.56 кб, pdf
- Градостроительный план земельного участка, корпус 5 10 ф. 28.07.20207.68 мб, pdf
- Заключение о степени готовности 77-239000-017234-2018, корпус 5 10 ф. 19.07.2019187.54 кб, pdf
- Информация о выданных заключениях о соответствии застройщика и проектной декларации требованиям 214-ФЗ 77-002049 77-13-380/8, корпус 5 10 ф. 02.08.2018255.85 кб, pdf
- Разрешение на строительство 77-239000-017234-2018, корпус 5 10 ф. 05.06.201810.86 мб, pdf
- Проектная декларация № 77-002049, корпус 5 фаза 08.06.20231.81 мб, pdf
- Разрешение на ввод 77-239000-010109-2021, корпус 5 фаза 16.06.20213.84 мб, pdf
- Схема планировочной организации земельного участка, корпус 5 фаза 08.04.202163.36 мб, pdf
- Экспертиза проектной документации, корпус 5 фаза 17.03.20217.50 мб, pdf
- Проект договора участия в долевом строительстве, корпус 5 фаза 19.08.2020383.56 кб, pdf
- Извещение о начале строительства, корпус 5 фаза 19.08.20207.88 мб, pdf
- Градостроительный план земельного участка, корпус 5 фаза 28.07.20207.68 мб, pdf
- Заключение о степени готовности 77-239000-017234-2018, корпус 5 фаза 19.07.2019187.54 кб, pdf
- Информация о выданных заключениях о соответствии застройщика и проектной декларации требованиям 214-ФЗ 77-002049 77-13-380/8, корпус 5 фаза 02.08.2018255.85 кб, pdf
- Разрешение на строительство 77-239000-017234-2018, корпус 5 фаза 05.06.201810.86 мб, pdf
- Проектная декларация № 77-002049, корпус 7 10 ф. 08.06.20231.81 мб, pdf
- Разрешение на ввод 77-239000-010109-2021, корпус 7 10 ф. 16.06.20213.84 мб, pdf
- Схема планировочной организации земельного участка, корпус 7 10 ф. 08.04.202163.36 мб, pdf
- Экспертиза проектной документации, корпус 7 10 ф. 17.03.20217.50 мб, pdf
- Проект договора участия в долевом строительстве, корпус 7 10 ф. 19.08.2020383.56 кб, pdf
- Извещение о начале строительства, корпус 7 10 ф. 19.08.20207.88 мб, pdf
- Градостроительный план земельного участка, корпус 7 10 ф. 28.07.20207.68 мб, pdf
- Заключение о степени готовности 77-239000-017234-2018, корпус 7 10 ф. 19.07.2019187.54 кб, pdf
- Информация о выданных заключениях о соответствии застройщика и проектной декларации требованиям 214-ФЗ 77-002049 77-13-380/8, корпус 7 10 ф. 02.08.2018255.85 кб, pdf
- Разрешение на строительство 77-239000-017234-2018, корпус 7 10 ф. 05.06.201810.86 мб, pdf
- Проектная декларация № 77-002049, корпус 8 08.06.20231.81 мб, pdf
- Разрешение на ввод 77-239000-010109-2021, корпус 8 16.06.20213.84 мб, pdf
- Схема планировочной организации земельного участка, корпус 8 08.04.202163.36 мб, pdf
- Экспертиза проектной документации, корпус 8 17.03.20217.50 мб, pdf
- Извещение о начале строительства, корпус 8 19.08.20207.88 мб, pdf
- Проект договора участия в долевом строительстве, корпус 8 19.08.2020383.56 кб, pdf
- Градостроительный план земельного участка, корпус 8 28.07.20207.68 мб, pdf
- Заключение о степени готовности 77-239000-017234-2018, корпус 8 19.07.2019187.54 кб, pdf
- Информация о выданных заключениях о соответствии застройщика и проектной декларации требованиям 214-ФЗ 77-002049 77-13-380/8, корпус 8 02.08.2018255.85 кб, pdf
- Разрешение на строительство 77-239000-017234-2018, корпус 8 05.06.201810.86 мб, pdf
- Проектная декларация № 77-002049, корпус 7 08.06.20231.81 мб, pdf
- Разрешение на ввод 77-239000-010109-2021, корпус 7 16.06.20213.84 мб, pdf
- Схема планировочной организации земельного участка, корпус 7 08.04.202163.36 мб, pdf
- Экспертиза проектной документации, корпус 7 17.03.20217.50 мб, pdf
- Проект договора участия в долевом строительстве, корпус 7 19.08.2020383.56 кб, pdf
- Извещение о начале строительства, корпус 7 19.08.20207.88 мб, pdf
- Градостроительный план земельного участка, корпус 7 28.07.20207.68 мб, pdf
- Заключение о степени готовности 77-239000-017234-2018, корпус 7 19.07.2019187.54 кб, pdf
- Информация о выданных заключениях о соответствии застройщика и проектной декларации требованиям 214-ФЗ 77-002049 77-13-380/8, корпус 7 02.08.2018255.85 кб, pdf
- Разрешение на строительство 77-239000-017234-2018, корпус 7 05.06.201810.86 мб, pdf
- Проектная декларация № 77-002049, корпус 6 08.06.20231.81 мб, pdf
- Разрешение на ввод 77-239000-010109-2021, корпус 6 16.06.20213.84 мб, pdf
- Схема планировочной организации земельного участка, корпус 6 08.04.202163.36 мб, pdf
- Экспертиза проектной документации, корпус 6 17.03.20217.50 мб, pdf
- Извещение о начале строительства, корпус 6 19.08.20207.88 мб, pdf
- Проект договора участия в долевом строительстве, корпус 6 19.08.2020383.56 кб, pdf
- Градостроительный план земельного участка, корпус 6 28.07.20207.68 мб, pdf
- Заключение о степени готовности 77-239000-017234-2018, корпус 6 19.07.2019187.54 кб, pdf
- Информация о выданных заключениях о соответствии застройщика и проектной декларации требованиям 214-ФЗ 77-002049 77-13-380/8, корпус 6 02.08.2018255.85 кб, pdf
- Разрешение на строительство 77-239000-017234-2018, корпус 6 05.06.201810.86 мб, pdf
- Проектная декларация № 77-002049, корпус 5 08.06.20231.81 мб, pdf
- Разрешение на ввод 77-239000-010109-2021, корпус 5 16.06.20213.84 мб, pdf
- Схема планировочной организации земельного участка, корпус 5 08.04.202163.36 мб, pdf
- Экспертиза проектной документации, корпус 5 17.03.20217.50 мб, pdf
- Извещение о начале строительства, корпус 5 19.08.20207.88 мб, pdf
- Проект договора участия в долевом строительстве, корпус 5 19.08.2020383.56 кб, pdf
- Градостроительный план земельного участка, корпус 5 28.07.20207.68 мб, pdf
- Заключение о степени готовности 77-239000-017234-2018, корпус 5 19.07.2019187.54 кб, pdf
- Информация о выданных заключениях о соответствии застройщика и проектной декларации требованиям 214-ФЗ 77-002049 77-13-380/8, корпус 5 02.08.2018255.85 кб, pdf
- Разрешение на строительство 77-239000-017234-2018, корпус 5 05.06.201810.86 мб, pdf























