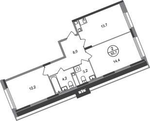
2-Комнатная квартира, 55.7 м², ID 680638
Обновлено Вчера, 14:29
18 779 577 ₽
337 156 ₽ / м2
- Срок сдачи
- III квартал 2026
- Застройщик
- нет данных
- Общая площадь
- 55.7 м2
- Жилая площадь
- 26.6 м2
- Площадь кухни
- 55.7 м2
- Этаж
- 2 из 25
- Корпус
- 2
- Отделка
- Черновая
- ID
- 680638
Расположение
Описание
Двухкомнатная квартира, 55.7 м2 в ЖК Переделкино Ближнее от
Продается 2-комн. квартира в новостройке ЖК Переделкино Ближнее по цене 18 779 577 ₽, расположенная по адресу Москва, Новомосковский (НАО), Внуковское, поселение Внуковское, ул Корнея Чуковского. Строится компанией Абсолют. Квартира сдается в 3 квартале 2026 года с черновой отделкой, в 7 минутах пешком от метро Рассказовка. Общая площадь квартиры - 55.7 кв. м. Этаж 2 из 17. ID квартиры на СтройкиРУ 680638, сообщите его когда будете звонить.
Подробнее о ЖК Переделкино Ближнее
Ход строительства
Документация
- Проектная декларация № 77-000023, корпус 10 фаза 5 11.09.2018614.97 кб, pdf
- Проект договора участия в долевом строительстве, корпус 10 фаза 5 10.09.2018476.81 кб, pdf
- Разрешение на ввод 77-229000-007170-2016, корпус 10 фаза 5 16.02.20164.47 мб, pdf
- Разрешение на строительство RU77229000-008245, корпус 10 фаза 5 12.07.20131.37 мб, pdf
- Экспертиза проектной документации, корпус 10 фаза 5 17.06.201316.73 мб, pdf
- Проектная декларация № 77-000023, корпус 9 фаза 7 11.09.2018614.97 кб, pdf
- Проект договора участия в долевом строительстве, корпус 9 фаза 7 10.09.2018476.81 кб, pdf
- Разрешение на ввод 77-229000-007170-2016, корпус 9 фаза 7 16.02.20164.47 мб, pdf
- Разрешение на строительство RU77229000-008245, корпус 9 фаза 7 12.07.20131.37 мб, pdf
- Экспертиза проектной документации, корпус 9 фаза 7 17.06.201316.73 мб, pdf
- Проектная декларация № 77-000023, корпус 9 фаза 6 11.09.2018614.97 кб, pdf
- Проект договора участия в долевом строительстве, корпус 9 фаза 6 10.09.2018476.81 кб, pdf
- Разрешение на ввод 77-229000-007170-2016, корпус 9 фаза 6 16.02.20164.47 мб, pdf
- Разрешение на строительство RU77229000-008245, корпус 9 фаза 6 12.07.20131.37 мб, pdf
- Экспертиза проектной документации, корпус 9 фаза 6 17.06.201316.73 мб, pdf
- Проектная декларация № 77-000023, корпус 6 11.09.2018614.97 кб, pdf
- Проект договора участия в долевом строительстве, корпус 6 10.09.2018476.81 кб, pdf
- Разрешение на ввод 77-229000-007170-2016, корпус 6 16.02.20164.47 мб, pdf
- Разрешение на строительство RU77229000-008245, корпус 6 12.07.20131.37 мб, pdf
- Экспертиза проектной документации, корпус 6 17.06.201316.73 мб, pdf
- Проектная декларация № 77-000023, корпус 5 11.09.2018614.97 кб, pdf
- Проект договора участия в долевом строительстве, корпус 5 10.09.2018476.81 кб, pdf
- Разрешение на ввод 77-229000-007170-2016, корпус 5 16.02.20164.47 мб, pdf
- Разрешение на строительство RU77229000-008245, корпус 5 12.07.20131.37 мб, pdf
- Экспертиза проектной документации, корпус 5 17.06.201316.73 мб, pdf
- Проектная декларация № 77-000023, корпус 4 11.09.2018614.97 кб, pdf
- Проект договора участия в долевом строительстве, корпус 4 10.09.2018476.81 кб, pdf
- Разрешение на ввод 77-229000-007170-2016, корпус 4 16.02.20164.47 мб, pdf
- Разрешение на строительство RU77229000-008245, корпус 4 12.07.20131.37 мб, pdf
- Экспертиза проектной документации, корпус 4 17.06.201316.73 мб, pdf























