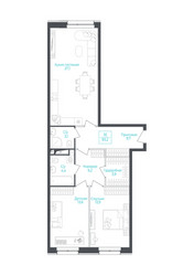
Апартаменты-студия, 84 м², ID 735341
Обновлено Сегодня, 15:42
25 917 578 ₽
308 543 ₽ / м2
- Срок сдачи
- I квартал 2024
- Застройщик
- нет данных
- Тип
- Студия
- Общая площадь
- 84 м2
- Жилая площадь
- 71.4 м2
- Площадь кухни
- 84 м2
- Этаж
- 5 из 10
- Отделка
- не указана
- ID
- 735341
Расположение
Описание
Студия апартаменты, 84 м2 в ЖК Monodom Lake от
Продаются апартаменты-студия в новостройке ЖК Monodom Lake по цене 25 917 578 рублей, расположенные по адресу Москва, Северный (САО), Головинский, ул Михалковская, д 52. Компания застройщик Sun Development. Апартаменты сдаются в I квартале 2024 года в 5 минутах на машине от метро Водный стадион. Общая площадь апартаментов - 84 м². Этаж 5 из 10. ID апартаментов на СтройкиРУ 735341, сообщите его когда будете звонить.
Подробнее о ЖК Monodom Lake
Особенности
Ход строительства
Документация
- Проектная декларация № 77-002147, корпус 1 20.06.2023345.50 кб, pdf
- Извещение о начале строительства, корпус 1 28.01.2021233.83 кб, pdf
- Проект договора участия в долевом строительстве, корпус 1 13.01.202173.16 кб, pdf
- Информация о выданных заключениях о соответствии застройщика и проектной декларации требованиям 214-ФЗ 77-002147 ЗОС/146/77-002147, корпус 1 29.12.2020632.07 кб, pdf
- Разрешение на строительство 77-124000-019279-2020, корпус 1 09.12.20201.36 мб, pdf
- Схема планировочной организации земельного участка, корпус 1 09.12.202012.56 мб, pdf
- Экспертиза проектной документации, корпус 1 10.11.20201.51 мб, pdf
- Градостроительный план земельного участка, корпус 1 31.08.20204.25 мб, pdf




















