Реклама. Застройщик

Проектная декларация на наш.дом.рф. Токен: 2SDnjewfm2q.

Поствью

Реклама. Застройщик LEGENDA Intelligent Development

Проектная декларация на наш.дом.рф. Токен: 2SDnjewfm2q.

LEGENDA Intelligent DevelopmentПоствью

Реклама. Застройщик LEGENDA Intelligent Development

Проектная декларация на наш.дом.рф. Токен: 2SDnjewfm2q.

LEGENDA Intelligent DevelopmentПоствью

2-Комнатная квартира, 51.9 м², ID 708966

23 251 200 ₽

448 000 ₽ / м2

Срок сдачи
II квартал 2026
Застройщик
нет данных
Общая площадь
51.9 м2
Жилая площадь
20 м2
Площадь кухни
51.9 м2
Этаж
27 из 28
Отделка
Черновая
ID
708966

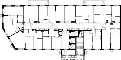
Описание

Двухкомнатная квартира, 51.9 м2 в ЖК Малевич от

Продается 2-комн. квартира в новостройке ЖК Малевич по цене 23 251 200 ₽, расположенная по адресу Москва, Северо-Восточный (СВАО), Отрадное, ул Отрадная, д 8. Строится компанией Концерн КРОСТ. Квартира сдается в 2 квартале 2026 года с черновой отделкой, в 5 минутах пешком от метро Отрадное. Общая площадь квартиры - 51.9 кв. м. Этаж 27 из 28. ID квартиры на СтройкиРУ 708966, сообщите его когда будете звонить.

Подробнее о ЖК Малевич

“Малевич” - жилой комплекс комфорт-класса от застройщика “Крост” в Северо-восточном административном округе Москвы, в районе Отрадное.  Здание представляет собой 3 секции в 28 этажей. Застройщик предлагает к покупке однокомнатные, двухкомнатные и трехкомнатные квартиры с 49 типами планировок. Площадь жилья варьируется от 28,8 м2 до 71,7 м2, высота потолков составляет 3 метра. Инфраструктура и благоустройство До станции метро “Отрадное” - 5 минут пешком, до станции метро “Владыкино” - 24 минуты пешком, для удобства автовладельцев рядом Алтуфьевское шоссе Три парковых общественных пространства поблизости: во внутренней части двора, приватный парк на крыше дома и открытый парк-вернисаж на улице Отрадная На первом этаже расположены: торговая галерея, коворкинги и офисы, общественные пространства, рестораны и магазины. Страница ЖК >>
Застройщик %_NAME_% Застройщик %_NAME_%
%_YEAR_%Год основания
99Сдано корпусов в 9 ЖК
999Строится корпусов в 99 ЖК

Жилые комплексы от

Ход строительства

Популярные жилые комплексы

    Похожие квартиры

    Двухкомнатная квартира, 51.9 м2

    23 251 200 ₽

    448 000 ₽ / м2

    Сдан

    Застройщик

    Количество объектов:

    Застройщик %_NAME_%
    Показать телефон

    Застройщик