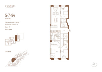
3-Комнатная квартира, 158.5 м², ID 647628
Обновлено Неделю назад
281 020 500 ₽
1 773 000 ₽ / м2
- Срок сдачи
- I квартал 2028
- Застройщик
- нет данных
- Общая площадь
- 158.5 м2
- Этаж
- 7 из 18
- Корпус
- 5
- Отделка
- Чистовая
- ID
- 647628
Расположение
Описание
Трехкомнатная квартира, 158.5 м2 в ЖК Квартал Веспер Кутузовский от
Продается 3-комн. квартира в новостройке ЖК Квартал Веспер Кутузовский по цене 281 020 500 руб, расположенная по адресу Москва, Западный (ЗАО), Дорогомилово, Кутузовский пр-кт, д 12. Застройщик Vesper. Квартира сдается в 1 квартале 2028 года с чистовой отделкой, в 15 минутах пешком от метро Киевская. Общая площадь квартиры - 158.5 кв. м. Этаж 7. ID квартиры на СтройкиРУ 647628, сообщите его когда будете звонить.





















