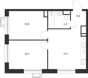
2-Комнатная квартира, 49.5 м², ID 740499
Обновлено Сегодня, 16:40
16 587 646 ₽
335 104 ₽ / м2
- Срок сдачи
- II квартал 2026
- Застройщик
- нет данных
- Общая площадь
- 49.5 м2
- Жилая площадь
- 32.4 м2
- Площадь кухни
- 49.5 м2
- Этаж
- 11 из 10
- Отделка
- не указана
- ID
- 740499
Расположение
Описание
Двухкомнатная квартира, 49.5 м2 в ЖК Форевиль от
Продается 2-комн. квартира в новостройке ЖК Форевиль за 16 587 646 ₽, находящаяся по адресу Москва, Новомосковский (НАО), Сосенское, ул Разведчика Дейча. Строится компанией 3S Group. Квартира сдается в 2 квартале 2026 года в 10 минутах пешком от станции метрополитена Корниловская. Общая площадь квартиры - 49.5 кв. м. Этаж 11 из 17. ID квартиры на СтройкиРУ 740499, назовите его когда будете звонить.

















