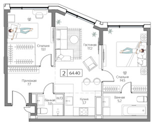
2-Комнатная квартира, 64 м², ID 663339
Обновлено 5 дня назад
43 964 534 ₽
686 946 ₽ / м2
- Срок сдачи
- III квартал 2027
- Застройщик
- нет данных
- Общая площадь
- 64 м2
- Этаж
- 18 из 27
- Корпус
- Терра
- Отделка
- не указана
- ID
- 663339
Расположение
Описание
Двухкомнатная квартира, 64 м2 в ЖК Дрим Рива от
Продается двухкомнатная квартира в новостройке ЖК Дрим Рива за 43 964 534 р, находящаяся по адресу Москва, Южный (ЮАО), Нагатинский Затон, Нагатинская наб. Застройщик дома Regions Development. Квартира сдается в III квартале 2027 года в 7 минутах на машине от станции метрополитена Коломенская. Общая площадь квартиры - 64 м². Этаж 18. ID квартиры на СтройкиРУ 663339, назовите его когда будете звонить.
Подробнее о ЖК Дрим Рива
Особенности
Ход строительства
1 упоминание о ЖК Дрим Рива в наших материалах



















