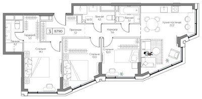
3-Комнатная квартира, 87 м², ID 663323
Обновлено 5 дня назад
70 209 082 ₽
807 001 ₽ / м2
- Срок сдачи
- III квартал 2027
- Застройщик
- нет данных
- Общая площадь
- 87 м2
- Этаж
- 22 из 27
- Корпус
- Ариа
- Отделка
- не указана
- ID
- 663323
Расположение
Описание
Трехкомнатная квартира, 87 м2 в ЖК Дрим Рива от
Продается трехкомнатная квартира в новостройке ЖК Дрим Рива по цене 70 209 082 р, расположенная по адресу Москва, Южный (ЮАО), Нагатинский Затон, Нагатинская наб. Застройщик дома Regions Development. Квартира сдается в III квартале 2027 года в 7 минутах на машине от метро Коломенская. Общая площадь квартиры - 87 м². Этаж 22. ID квартиры на СтройкиРУ 663323, сообщите его когда будете звонить.
Подробнее о ЖК Дрим Рива
Особенности
Ход строительства
1 упоминание о ЖК Дрим Рива в наших материалах



















