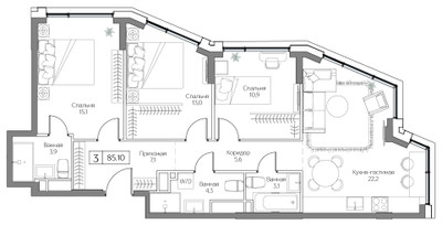
3-Комнатная квартира, 85 м², ID 663322
Обновлено Неделю назад
70 480 140 ₽
829 178 ₽ / м2
- Срок сдачи
- III квартал 2027
- Застройщик
- нет данных
- Общая площадь
- 85 м2
- Этаж
- 22 из 27
- Корпус
- Ариа
- Отделка
- не указана
- ID
- 663322
Расположение
Описание
Трехкомнатная квартира, 85 м2 в ЖК Дрим Рива от
Продается трехкомнатная квартира в новостройке ЖК Дрим Рива по цене 70 480 140 рублей, расположенная по адресу Москва, Южный (ЮАО), Нагатинский Затон, Нагатинская наб. Компания застройщик Regions Development. Квартира сдается в III квартале 2027 года в 7 минутах на машине от метро Коломенская. Общая площадь квартиры - 85 м². Этаж 22. ID квартиры на СтройкиРУ 663322, сообщите его когда будете звонить.
Подробнее о ЖК Дрим Рива
Особенности
Ход строительства
1 упоминание о ЖК Дрим Рива в наших материалах



















