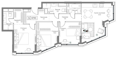
3-Комнатная квартира, 87 м², ID 663320
Обновлено Неделю назад
68 771 075 ₽
790 472 ₽ / м2
- Срок сдачи
- III квартал 2027
- Застройщик
- нет данных
- Общая площадь
- 87 м2
- Этаж
- 19 из 27
- Корпус
- Ариа
- Отделка
- не указана
- ID
- 663320
Расположение
Описание
Трехкомнатная квартира, 87 м2 в ЖК Дрим Рива от
Продается 3-комн. квартира в новостройке ЖК Дрим Рива стоимостью 68 771 075 ₽, по адресу Москва, Южный (ЮАО), Нагатинский Затон, Нагатинская наб. Строится компанией Regions Development. Квартира сдается в 3 квартале 2027 года в 7 минутах на машине от станции метро Коломенская. Общая площадь квартиры - 87 кв. м. Этаж 19. ID квартиры на СтройкиРУ 663320, скажите его когда будете звонить.
Подробнее о ЖК Дрим Рива
Особенности
Ход строительства
1 упоминание о ЖК Дрим Рива в наших материалах



















