3-Комнатная квартира, 85 м², ID 663315
Обновлено 5 дня назад
66 848 938 ₽
786 458 ₽ / м2
- Срок сдачи
- III квартал 2027
- Застройщик
- нет данных
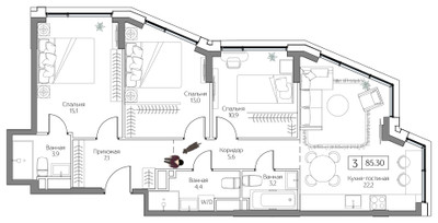
- Общая площадь
- 85 м2
- Этаж
- 13 из 27
- Корпус
- Ариа
- Отделка
- не указана
- ID
- 663315
Расположение
Описание
Трехкомнатная квартира, 85 м2 в ЖК Дрим Рива от
Продается трехкомнатная квартира в новостройке ЖК Дрим Рива за 66 848 938 р, находящаяся по адресу Москва, Южный (ЮАО), Нагатинский Затон, Нагатинская наб. Застройщик дома Regions Development. Квартира сдается в III квартале 2027 года в 7 минутах на машине от станции метрополитена Коломенская. Общая площадь квартиры - 85 м². Этаж 13. ID квартиры на СтройкиРУ 663315, назовите его когда будете звонить.
Подробнее о ЖК Дрим Рива
Особенности
Ход строительства
1 упоминание о ЖК Дрим Рива в наших материалах



















