3-Комнатная квартира, 87 м², ID 663304
Обновлено Неделю назад
68 291 740 ₽
784 963 ₽ / м2
- Срок сдачи
- III квартал 2027
- Застройщик
- нет данных
- Общая площадь
- 87 м2
- Этаж
- 18 из 27
- Корпус
- Аква
- Отделка
- не указана
- ID
- 663304
Расположение
Описание
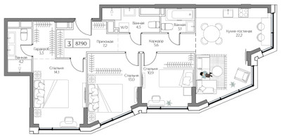
Трехкомнатная квартира, 87 м2 в ЖК Дрим Рива от
Продается 3-комн. квартира в новостройке ЖК Дрим Рива по цене 68 291 740 ₽, расположенная по адресу Москва, Южный (ЮАО), Нагатинский Затон, Нагатинская наб. Строится компанией Regions Development. Квартира сдается в 3 квартале 2027 года в 7 минутах на машине от метро Коломенская. Общая площадь квартиры - 87 кв. м. Этаж 18. ID квартиры на СтройкиРУ 663304, сообщите его когда будете звонить.
Подробнее о ЖК Дрим Рива
Особенности
Ход строительства
1 упоминание о ЖК Дрим Рива в наших материалах



















