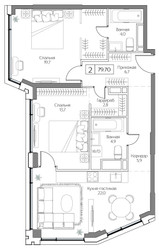
2-Комнатная квартира, 79 м², ID 663288
Обновлено Неделю назад
43 972 628 ₽
556 616 ₽ / м2
- Срок сдачи
- III квартал 2027
- Застройщик
- нет данных
- Общая площадь
- 79 м2
- Этаж
- 21 из 27
- Корпус
- Терра
- Отделка
- не указана
- ID
- 663288
Расположение
Описание
Двухкомнатная квартира, 79 м2 в ЖК Дрим Рива от
Продается 2-комн. квартира в новостройке ЖК Дрим Рива стоимостью 43 972 628 руб, по адресу Москва, Южный (ЮАО), Нагатинский Затон, Нагатинская наб. Застройщик Regions Development. Квартира сдается в 3 квартале 2027 года в 7 минутах на машине от станции метро Коломенская. Общая площадь квартиры - 79 кв. м. Этаж 21. ID квартиры на СтройкиРУ 663288, скажите его когда будете звонить.
Подробнее о ЖК Дрим Рива
Особенности
Ход строительства
1 упоминание о ЖК Дрим Рива в наших материалах



















