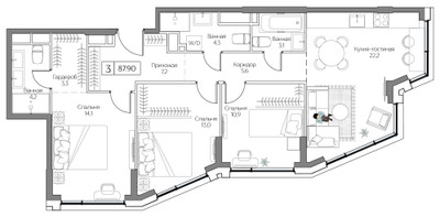
3-Комнатная квартира, 87 м², ID 660400
Обновлено Неделю назад
62 519 160 ₽
718 611 ₽ / м2
- Срок сдачи
- III квартал 2027
- Застройщик
- нет данных
- Общая площадь
- 87 м2
- Этаж
- 19 из 27
- Корпус
- Аква
- Отделка
- не указана
- ID
- 660400
Расположение
Описание
Трехкомнатная квартира, 87 м2 в ЖК Дрим Рива от
Продается трехкомнатная квартира в новостройке ЖК Дрим Рива по цене 62 519 160 р, расположенная по адресу Москва, Южный (ЮАО), Нагатинский Затон, Нагатинская наб. Застройщик дома Regions Development. Квартира сдается в III квартале 2027 года в 7 минутах на машине от метро Коломенская. Общая площадь квартиры - 87 м². Этаж 19. ID квартиры на СтройкиРУ 660400, сообщите его когда будете звонить.
Подробнее о ЖК Дрим Рива
Особенности
Ход строительства
1 упоминание о ЖК Дрим Рива в наших материалах



















