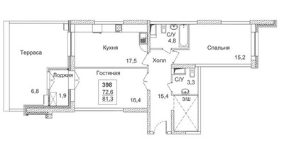
2-Комнатная квартира, 81.3 м², ID 587181
Обновлено 2 недели назад
39 024 000 ₽
480 000 ₽ / м2
- Срок сдачи
- I квартал 2023
- Застройщик
- нет данных
- Общая площадь
- 81.3 м2
- Жилая площадь
- 31.6 м2
- Площадь кухни
- 17.5 м2
- Высота потолков
- 4 м
- Этаж
- 2 из 24
- Корпус
- 3 дом
- Отделка
- Черновая
- Санузел
- Раздельный
- ID
- 587181
Описание
Двухкомнатная квартира, 81.3 м2 в ЖК Династия от
Продается двухкомнатная квартира в новостройке ЖК Династия стоимостью 39 024 000 рублей, по адресу Москва, Северный (САО), Хорошёвский, Хорошёвское шоссе, влд 25. Компания застройщик Sezar Group. Квартира сдается в I квартале 2023 года с черновой отделкой, . Общая площадь квартиры - 81.3 м². Этаж 2 из 24. ID квартиры на СтройкиРУ 587181, скажите его когда будете звонить.
Подробнее о ЖК Династия
Особенности
Ход строительства
Документация
- Проектная декларация № 77-000559, корпус 3 дом 08.06.2023989.39 кб, pdf
- Разрешение на ввод 77-09-011239-2023, корпус 3 дом 18.01.2023166.97 кб, pdf
- Схема планировочной организации земельного участка, корпус 3 дом 10.03.202226.30 мб, pdf
- Проект договора участия в долевом строительстве, корпус 3 дом 08.02.2022382.34 кб, pdf
- Градостроительный план земельного участка, корпус 3 дом 16.12.20212.73 мб, pdf
- Экспертиза проектной документации, корпус 3 дом 15.06.2021875.89 кб, pdf
- Заключение о степени готовности 77-213000-013762-2016, корпус 3 дом 07.10.2019285.48 кб, pdf
- Извещение о начале строительства, корпус 3 дом 18.04.2019231.85 кб, pdf
- Разрешение на строительство 77-213000-013762-2016, корпус 3 дом 16.12.20164.29 мб, pdf
- Проектная декларация № 77-000559, корпус 1 дом 08.06.2023989.39 кб, pdf
- Разрешение на ввод 77-09-011239-2023, корпус 1 дом 18.01.2023166.97 кб, pdf
- Схема планировочной организации земельного участка, корпус 1 дом 10.03.202226.30 мб, pdf
- Проект договора участия в долевом строительстве, корпус 1 дом 08.02.2022382.34 кб, pdf
- Градостроительный план земельного участка, корпус 1 дом 16.12.20212.73 мб, pdf
- Экспертиза проектной документации, корпус 1 дом 15.06.2021875.89 кб, pdf
- Заключение о степени готовности 77-213000-013762-2016, корпус 1 дом 07.10.2019285.48 кб, pdf
- Извещение о начале строительства, корпус 1 дом 18.04.2019231.85 кб, pdf
- Разрешение на строительство 77-213000-013762-2016, корпус 1 дом 16.12.20164.29 мб, pdf
- Проектная декларация № 77-000559, корпус 2 дом 08.06.2023989.39 кб, pdf
- Разрешение на ввод 77-09-011239-2023, корпус 2 дом 18.01.2023166.97 кб, pdf
- Схема планировочной организации земельного участка, корпус 2 дом 10.03.202226.30 мб, pdf
- Проект договора участия в долевом строительстве, корпус 2 дом 08.02.2022382.34 кб, pdf
- Градостроительный план земельного участка, корпус 2 дом 16.12.20212.73 мб, pdf
- Экспертиза проектной документации, корпус 2 дом 15.06.2021875.89 кб, pdf
- Заключение о степени готовности 77-213000-013762-2016, корпус 2 дом 07.10.2019285.48 кб, pdf
- Извещение о начале строительства, корпус 2 дом 18.04.2019231.85 кб, pdf
- Разрешение на строительство 77-213000-013762-2016, корпус 2 дом 16.12.20164.29 мб, pdf
- Проектная декларация № 77-000559, корпус 2 08.06.2023989.39 кб, pdf
- Разрешение на ввод 77-09-011239-2023, корпус 2 18.01.2023166.97 кб, pdf
- Схема планировочной организации земельного участка, корпус 2 10.03.202226.30 мб, pdf
- Проект договора участия в долевом строительстве, корпус 2 08.02.2022382.34 кб, pdf
- Градостроительный план земельного участка, корпус 2 16.12.20212.73 мб, pdf
- Экспертиза проектной документации, корпус 2 15.06.2021875.89 кб, pdf
- Заключение о степени готовности 77-213000-013762-2016, корпус 2 07.10.2019285.48 кб, pdf
- Извещение о начале строительства, корпус 2 18.04.2019231.85 кб, pdf
- Разрешение на строительство 77-213000-013762-2016, корпус 2 16.12.20164.29 мб, pdf
- Проектная декларация № 77-000559, корпус 1 08.06.2023989.39 кб, pdf
- Разрешение на ввод 77-09-011239-2023, корпус 1 18.01.2023166.97 кб, pdf
- Схема планировочной организации земельного участка, корпус 1 10.03.202226.30 мб, pdf
- Проект договора участия в долевом строительстве, корпус 1 08.02.2022382.34 кб, pdf
- Градостроительный план земельного участка, корпус 1 16.12.20212.73 мб, pdf
- Экспертиза проектной документации, корпус 1 15.06.2021875.89 кб, pdf
- Заключение о степени готовности 77-213000-013762-2016, корпус 1 07.10.2019285.48 кб, pdf
- Извещение о начале строительства, корпус 1 18.04.2019231.85 кб, pdf
- Разрешение на строительство 77-213000-013762-2016, корпус 1 16.12.20164.29 мб, pdf
- Проектная декларация № 77-000559, корпус 3 08.06.2023989.39 кб, pdf
- Разрешение на ввод 77-09-011239-2023, корпус 3 18.01.2023166.97 кб, pdf
- Схема планировочной организации земельного участка, корпус 3 10.03.202226.30 мб, pdf
- Проект договора участия в долевом строительстве, корпус 3 08.02.2022382.34 кб, pdf
- Градостроительный план земельного участка, корпус 3 16.12.20212.73 мб, pdf
- Экспертиза проектной документации, корпус 3 15.06.2021875.89 кб, pdf
- Заключение о степени готовности 77-213000-013762-2016, корпус 3 07.10.2019285.48 кб, pdf
- Извещение о начале строительства, корпус 3 18.04.2019231.85 кб, pdf
- Разрешение на строительство 77-213000-013762-2016, корпус 3 16.12.20164.29 мб, pdf























