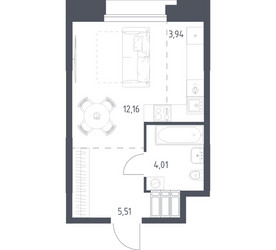
Апартаменты-студия, 25.62 м², ID 703761
Обновлено Вчера, 20:03
10 367 782 ₽
404 675 ₽ / м2
Расположение
Описание
Студия апартаменты, 25.62 м2 в ЖК Апарт-отель Тропарево парк от
Продаются апартаменты-студия в новостройке ЖК Апарт-отель Тропарево парк по цене 10 367 782 р, расположенные по адресу Москва, Новомосковский (НАО), Мосрентген, поселение Мосрентген, кв-л 2, д 10. Застройщик дома Группа "Самолет". Апартаменты сдаются в III квартале 2026 года с чистовой отделкой, в 10 минутах пешком от метро Румянцево. Общая площадь апартаментов - 25.62 м². Этаж 18 из 23. ID апартаментов на СтройкиРУ 703761, сообщите его когда будете звонить.
Подробнее о ЖК Апарт-отель Тропарево парк
Особенности
Ход строительства
Документация
- Проект договора участия в долевом строительстве, корпус 2.4 06.06.2023293.74 кб, pdf
- Проектная декларация № 77-002398, корпус 2.4 06.06.20233.18 мб, pdf
- Извещение о начале строительства, корпус 2.4 28.01.2022865.69 кб, pdf
- Схема планировочной организации земельного участка, корпус 2.4 20.01.202220.73 мб, pdf
- Градостроительный план земельного участка, корпус 2.4 20.01.202213.07 мб, pdf
- Разрешение на строительство 77-240000-019988-2022, корпус 2.4 18.01.20222.24 мб, pdf
- Экспертиза проектной документации, корпус 2.4 17.12.20211.23 мб, pdf
- Проектная декларация № 77-002398, корпус 2.2 06.06.20233.18 мб, pdf
- Проект договора участия в долевом строительстве, корпус 2.2 06.06.2023293.74 кб, pdf
- Извещение о начале строительства, корпус 2.2 28.01.2022865.69 кб, pdf
- Градостроительный план земельного участка, корпус 2.2 20.01.202213.07 мб, pdf
- Схема планировочной организации земельного участка, корпус 2.2 20.01.202220.73 мб, pdf
- Разрешение на строительство 77-240000-019988-2022, корпус 2.2 18.01.20222.24 мб, pdf
- Экспертиза проектной документации, корпус 2.2 17.12.20211.23 мб, pdf
- Проектная декларация № 77-002398, корпус 2.1 06.06.20233.18 мб, pdf
- Проект договора участия в долевом строительстве, корпус 2.1 06.06.2023293.74 кб, pdf
- Извещение о начале строительства, корпус 2.1 28.01.2022865.69 кб, pdf
- Схема планировочной организации земельного участка, корпус 2.1 20.01.202220.73 мб, pdf
- Градостроительный план земельного участка, корпус 2.1 20.01.202213.07 мб, pdf
- Разрешение на строительство 77-240000-019988-2022, корпус 2.1 18.01.20222.24 мб, pdf
- Экспертиза проектной документации, корпус 2.1 17.12.20211.23 мб, pdf
- Разрешение на ввод 77-17-011468-2023, корпус 1.3 21.06.2023167.10 кб, pdf
- Проект договора участия в долевом строительстве, корпус 1.3 06.06.2023293.74 кб, pdf
- Проектная декларация № 77-002235, корпус 1.3 06.06.20231.52 мб, pdf
- Извещение о начале строительства, корпус 1.3 24.05.202157.61 кб, pdf
- Информация о выданных заключениях о соответствии застройщика и проектной декларации требованиям 214-ФЗ 77-002235 ЗОС/221/77-002235, корпус 1.3 21.05.2021624.16 кб, pdf
- Разрешение на строительство 77-240000-019517-2021, корпус 1.3 22.04.20212.86 мб, pdf
- Схема планировочной организации земельного участка, корпус 1.3 11.02.20214.33 мб, pdf
- Градостроительный план земельного участка, корпус 1.3 21.01.20215.63 мб, pdf
- Экспертиза проектной документации, корпус 1.3 17.12.20201.45 мб, pdf
- Разрешение на ввод 77-17-011468-2023, корпус 1.2 21.06.2023167.10 кб, pdf
- Проектная декларация № 77-002235, корпус 1.2 06.06.20231.52 мб, pdf
- Проект договора участия в долевом строительстве, корпус 1.2 06.06.2023293.74 кб, pdf
- Извещение о начале строительства, корпус 1.2 24.05.202157.61 кб, pdf
- Информация о выданных заключениях о соответствии застройщика и проектной декларации требованиям 214-ФЗ 77-002235 ЗОС/221/77-002235, корпус 1.2 21.05.2021624.16 кб, pdf
- Разрешение на строительство 77-240000-019517-2021, корпус 1.2 22.04.20212.86 мб, pdf
- Схема планировочной организации земельного участка, корпус 1.2 11.02.20214.33 мб, pdf
- Градостроительный план земельного участка, корпус 1.2 21.01.20215.63 мб, pdf
- Экспертиза проектной документации, корпус 1.2 17.12.20201.45 мб, pdf
- Разрешение на ввод 77-17-011468-2023, корпус 1.1 21.06.2023167.10 кб, pdf
- Проект договора участия в долевом строительстве, корпус 1.1 06.06.2023293.74 кб, pdf
- Проектная декларация № 77-002235, корпус 1.1 06.06.20231.52 мб, pdf
- Извещение о начале строительства, корпус 1.1 24.05.202157.61 кб, pdf
- Информация о выданных заключениях о соответствии застройщика и проектной декларации требованиям 214-ФЗ 77-002235 ЗОС/221/77-002235, корпус 1.1 21.05.2021624.16 кб, pdf
- Разрешение на строительство 77-240000-019517-2021, корпус 1.1 22.04.20212.86 мб, pdf
- Схема планировочной организации земельного участка, корпус 1.1 11.02.20214.33 мб, pdf
- Градостроительный план земельного участка, корпус 1.1 21.01.20215.63 мб, pdf
- Экспертиза проектной документации, корпус 1.1 17.12.20201.45 мб, pdf




















