Реклама. Застройщик

Проектная декларация на наш.дом.рф. Токен: 2SDnjewfm2q.

Поствью

Реклама. Застройщик LEGENDA Intelligent Development

Проектная декларация на наш.дом.рф. Токен: 2SDnjewfm2q.

LEGENDA Intelligent DevelopmentПоствью

Реклама. Застройщик LEGENDA Intelligent Development

Проектная декларация на наш.дом.рф. Токен: 2SDnjewfm2q.

LEGENDA Intelligent DevelopmentПоствью

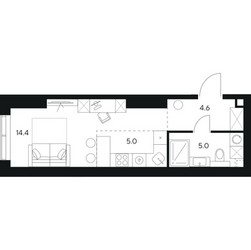
Квартира-студия, 29 м², ID 743300

25 554 800 ₽

881 200 ₽ / м2

Срок сдачи
III квартал 2029
Застройщик
нет данных
Общая площадь
29 м2
Этаж
2 из 48
Корпус
2
ID
743300

Описание

Студия квартира, 29 м2 в ЖК Нексус от Аквилон от

Продается квартира-студия в новостройке ЖК Нексус от Аквилон за 25 554 800 рублей, находящаяся по адресу Москва, Западный (ЗАО), Кунцево, ул Ярцевская, д 21 к 1. Компания застройщик Группа Аквилон. Квартира сдается в III квартале 2029 года с предчистовой отделкой, в 5 минутах пешком от станции метрополитена Молодежная. Общая площадь квартиры - 29 м². Этаж 2. ID квартиры на СтройкиРУ 743300, назовите его когда будете звонить.

Подробнее о ЖК Нексус от Аквилон

Проект бизнес-класса Нексус от Аквилон– это многофункциональный комплекс, сочетающий в себе жилую и офисную недвижимость. Две башни возводятся в районе Кунцево – место в западной части Москвы с богатым историческим наследием.Жилая и офисная башни комплекса будут объединены общим стилобатом, их высота варьируется от 41 до 46 этажей. Для отделки фасада подобрана теплая цветовая гамма, что подчеркивает близость проекта к природе. Основная часть башен будет остеклена, а в качестве декора задействованы ритмичные эркеры и балконы. Внутри жилой башни расположатся квартиры от студий до четырехкомнатных, среди которых особенно выделятся уникальные форматы планировок: лоты с угловыми панорамными окнами, пентхаусы, квартиры с многофункциональными мастер-спальнями и видами на центр города. В планировках предусмотрены изолированные спальни, гардеробные и постирочные помещения, большие кухни-гостиные или традиционные отдельные кухни, личные и гостевые санузлы. Максимальная высота потолков – 3,55 метра, площадь лотов варьируется от 28 до 95 кв. м.Студии и однокомнатные квартиры в доме Нексус от Аквилон сдаются с предчистовой отделкой. В нее входит весь перечень ремонтных работ, подготавливающих квартиры к чистовому оформлению: выравнивание стен и потолков, установка звукоизоляции в полу, радиаторов отопления с терморегуляторами, проведение сетей для интернета, домофонии и телевидения. Другие форматы планировок представлены в черновой отделке. Страница ЖК >>
Застройщик %_NAME_% Застройщик %_NAME_%
%_YEAR_%Год основания
99Сдано корпусов в 9 ЖК
999Строится корпусов в 99 ЖК

Жилые комплексы от

Ход строительства

Популярные жилые комплексы

    Похожие квартиры

    Студия квартира, 29 м2

    25 554 800 ₽

    881 200 ₽ / м2

    Срок сдачи III кв. 2029

    Застройщик

    Количество объектов:

    Застройщик %_NAME_%
    Показать телефон

    Застройщик