Реклама. Застройщик

Проектная декларация на наш.дом.рф. Токен: 2SDnjewfm2q.

Поствью

Реклама. Застройщик LEGENDA Intelligent Development

Проектная декларация на наш.дом.рф. Токен: 2SDnjewfm2q.

LEGENDA Intelligent DevelopmentПоствью

Реклама. Застройщик LEGENDA Intelligent Development

Проектная декларация на наш.дом.рф. Токен: 2SDnjewfm2q.

LEGENDA Intelligent DevelopmentПоствью

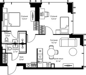
2-Комнатная квартира, 58.3 м², ID 742706

31 269 205 ₽

536 350 ₽ / м2

Срок сдачи
III квартал 2028
Застройщик
нет данных
Общая площадь
58.3 м2
Жилая площадь
39.7 м2
Площадь кухни
58.3 м2
Этаж
25 из 59
Отделка
не указана
ID
742706

Описание

Двухкомнатная квартира, 58.3 м2 в ЖК Веер от

Продается 2-комн. квартира в новостройке ЖК Веер по цене 31 269 205 руб, расположенная по адресу Москва, Западный (ЗАО), Можайский, ул Верейская, д 29. Застройщик MR Group. Квартира сдается в 3 квартале 2028 года в 23 минутах пешком от метро Давыдково. Общая площадь квартиры - 58.3 кв. м. Этаж 25 из 59. ID квартиры на СтройкиРУ 742706, сообщите его когда будете звонить.

Подробнее о ЖК Веер

“Веер” - жилой комплекс бизнес-класса от MR Group в Западном административном округе Москвы, в Можайском районе. Комплекс представляет собой пять разновысотных башен, объединенных стилобатом. Инфраструктура и благоустройство До станции метро “Давыдково” - 23 минуты пешком, до станции метро “Аминьевская” - 20 минут на транспорте, до станции метро “мичуринский проспект” - 28 минут на транспорте, до МЦД “Рабочий поселок” - 23 минуты на  транспорте, до МЦД “Кунцевская” - 22 минуты на транспорте Во дворе есть центральная площадь с прудом, амфитеатром и библиотекой Двухуровневый подземный паркинг на 695 мест с сервисом подкачки шин На территории квартала спортивная и развлекательная инфраструктура На территории лобби есть зоны отдыха. На территории квартала фитнес-клуб, воркаут-площадка, коворкинг, городская гостиная, кафе и рестораны На территории “Веер” действует концепция “двор без машин” Поблизости расположены Парк Победы, Троекуровский лес, живописный заказник “Долина реки Сетунь”, Дом творчества Переделкино, Поклонная гора. Страница ЖК >>
Застройщик %_NAME_% Застройщик %_NAME_%
%_YEAR_%Год основания
99Сдано корпусов в 9 ЖК
999Строится корпусов в 99 ЖК

Жилые комплексы от

Ход строительства

Популярные жилые комплексы

    Похожие квартиры

    Двухкомнатная квартира, 58.3 м2

    31 269 205 ₽

    536 350 ₽ / м2

    Срок сдачи III кв. 2028

    Застройщик

    Количество объектов:

    Застройщик %_NAME_%
    Показать телефон

    Застройщик