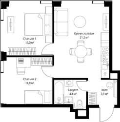
2-Комнатная квартира, 59.02 м², ID 742671
Обновлено Сегодня, 11:38
30 702 204 ₽
520 200 ₽ / м2
- ЖК
- ЖК Веер
- Срок сдачи
- III квартал 2028
- Застройщик
- нет данных
- Общая площадь
- 59.02 м2
- Жилая площадь
- 26.5 м2
- Площадь кухни
- 59.02 м2
- Этаж
- 17 из 59
- Отделка
- не указана
- ID
- 742671
Расположение
Описание
Двухкомнатная квартира, 59.02 м2 в ЖК Веер от
Продается 2-комн. квартира в новостройке ЖК Веер стоимостью 30 702 204 ₽, по адресу Москва, Западный (ЗАО), Можайский, ул Верейская, д 29. Строится компанией MR Group. Квартира сдается в 4 квартале 2029 года в 23 минутах пешком от станции метро Давыдково. Общая площадь квартиры - 59.02 кв. м. Этаж 17 из 59. ID квартиры на СтройкиРУ 742671, скажите его когда будете звонить.





































