1-Комнатная квартира, 45.77 м², ID 742529
Обновлено Сегодня, 00:17
24 470 930 ₽
534 650 ₽ / м2
- ЖК
- ЖК Веер
- Срок сдачи
- III квартал 2028
- Застройщик
- нет данных
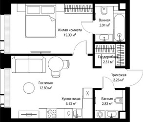
- Общая площадь
- 45.77 м2
- Жилая площадь
- 15.33 м2
- Площадь кухни
- 45.77 м2
- Этаж
- 63 из 59
- Отделка
- не указана
- ID
- 742529
Расположение
Описание
Однокомнатная квартира, 45.77 м2 в ЖК Веер от
Продается 1-комн. квартира в новостройке ЖК Веер за 24 470 930 руб, находящаяся по адресу Москва, Западный (ЗАО), Можайский, ул Верейская, д 29. Застройщик MR Group. Квартира сдается в 4 квартале 2029 года в 23 минутах пешком от станции метрополитена Давыдково. Общая площадь квартиры - 45.77 кв. м. Этаж 63 из 59. ID квартиры на СтройкиРУ 742529, назовите его когда будете звонить.





































