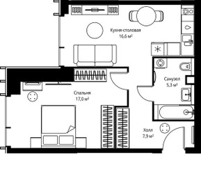
1-Комнатная квартира, 46.8 м², ID 742519
Обновлено Сегодня, 00:17
24 226 020 ₽
517 650 ₽ / м2
- ЖК
- ЖК Веер
- Срок сдачи
- III квартал 2028
- Застройщик
- нет данных
- Общая площадь
- 46.8 м2
- Жилая площадь
- 17 м2
- Площадь кухни
- 46.8 м2
- Этаж
- 7 из 59
- Отделка
- не указана
- ID
- 742519
Расположение
Описание
Однокомнатная квартира, 46.8 м2 в ЖК Веер от
Продается однокомнатная квартира в новостройке ЖК Веер по цене 24 226 020 рублей, расположенная по адресу Москва, Западный (ЗАО), Можайский, ул Верейская, д 29. Компания застройщик MR Group. Квартира сдается в III квартале 2028 года в 23 минутах пешком от метро Давыдково. Общая площадь квартиры - 46.8 м². Этаж 7 из 59. ID квартиры на СтройкиРУ 742519, сообщите его когда будете звонить.





































