1-Комнатная квартира, 58.1 м², ID 595704
Обновлено месяц назад

36 122 000 ₽
621 721 ₽ / м2
- Срок сдачи
- I квартал 2028
- Застройщик
- нет данных
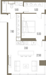
- Общая площадь
- 58.1 м2
- Жилая площадь
- 13.3 м2
- Площадь кухни
- 26.4 м2
- Высота потолков
- 3.15 м
- Этаж
- 3 из 58
- Корпус
- 7.3
- Отделка
- не указана
- Санузел
- Совмещенный
- ID
- 595704
Расположение
Описание
Однокомнатная квартира, 58.1 м2 в ЖК Северный порт. Береговые кварталы от
Продается однокомнатная квартира в новостройке ЖК Северный порт. Береговые кварталы по цене 36 122 000 р, расположенная по адресу Москва, Северный (САО), Левобережный, Ленинградское шоссе, д 57-63. Застройщик дома LEGENDA Intelligent Development. Квартира сдается в I квартале 2028 года в 15 минутах пешком от метро Беломорская. Общая площадь квартиры - 58.1 м². Этаж 3 из 57. ID квартиры на СтройкиРУ 595704, сообщите его когда будете звонить.

















