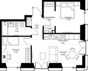
2-Комнатная квартира, 59.03 м², ID 687851
Обновлено Сегодня, 00:27
38 782 710 ₽
657 000 ₽ / м2
- ЖК
- ЖК СЕТ
- Срок сдачи
- III квартал 2028
- Застройщик
- нет данных
- Общая площадь
- 59.03 м2
- Жилая площадь
- 39.65 м2
- Площадь кухни
- 59.03 м2
- Этаж
- 6 из 59
- Отделка
- не указана
- ID
- 687851
Расположение
Описание
Двухкомнатная квартира, 59.03 м2 в ЖК СЕТ от
Продается двухкомнатная квартира в новостройке ЖК СЕТ стоимостью 38 782 710 рублей, по адресу Москва, Западный (ЗАО), Можайский, ул Верейская, д 29 стр 32Б. Компания застройщик MR Group. Квартира сдается в III квартале 2028 года в 13 минутах на машине от станции метро Давыдково. Общая площадь квартиры - 59.03 м². Этаж 6 из 59. ID квартиры на СтройкиРУ 687851, скажите его когда будете звонить.


















