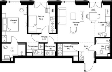
2-Комнатная квартира, 74.96 м², ID 687849
Обновлено Сегодня, 00:27
37 656 156 ₽
502 350 ₽ / м2
- ЖК
- ЖК СЕТ
- Срок сдачи
- III квартал 2028
- Застройщик
- нет данных
- Общая площадь
- 74.96 м2
- Жилая площадь
- 45.47 м2
- Площадь кухни
- 74.96 м2
- Этаж
- 4 из 59
- Отделка
- не указана
- ID
- 687849
Расположение
Описание
Двухкомнатная квартира, 74.96 м2 в ЖК СЕТ от
Продается двухкомнатная квартира в новостройке ЖК СЕТ по цене 37 656 156 рублей, расположенная по адресу Москва, Западный (ЗАО), Можайский, ул Верейская, д 29 стр 32Б. Компания застройщик MR Group. Квартира сдается в III квартале 2028 года в 13 минутах на машине от метро Давыдково. Общая площадь квартиры - 74.96 м². Этаж 4 из 59. ID квартиры на СтройкиРУ 687849, сообщите его когда будете звонить.


















