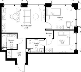
2-Комнатная квартира, 62.5 м², ID 687831
Обновлено Сегодня, 00:27
33 628 125 ₽
538 050 ₽ / м2
- ЖК
- ЖК СЕТ
- Срок сдачи
- III квартал 2028
- Застройщик
- нет данных
- Общая площадь
- 62.5 м2
- Жилая площадь
- 23.2 м2
- Площадь кухни
- 62.5 м2
- Этаж
- 10 из 59
- Отделка
- не указана
- ID
- 687831
Расположение
Описание
Двухкомнатная квартира, 62.5 м2 в ЖК СЕТ от
Продается 2-комн. квартира в новостройке ЖК СЕТ стоимостью 33 628 125 ₽, по адресу Москва, Западный (ЗАО), Можайский, ул Верейская, д 29 стр 32Б. Строится компанией MR Group. Квартира сдается в 3 квартале 2028 года в 13 минутах на машине от станции метро Давыдково. Общая площадь квартиры - 62.5 кв. м. Этаж 10 из 59. ID квартиры на СтройкиРУ 687831, скажите его когда будете звонить.


















