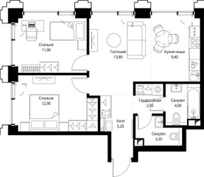
2-Комнатная квартира, 63.5 м², ID 687818
Обновлено Сегодня, 00:26
32 277 050 ₽
508 300 ₽ / м2
- ЖК
- ЖК СЕТ
- Срок сдачи
- III квартал 2028
- Застройщик
- нет данных
- Общая площадь
- 63.5 м2
- Жилая площадь
- 38.9 м2
- Площадь кухни
- 63.5 м2
- Этаж
- 10 из 59
- Отделка
- не указана
- ID
- 687818
Расположение
Описание
Двухкомнатная квартира, 63.5 м2 в ЖК СЕТ от
Продается двухкомнатная квартира в новостройке ЖК СЕТ по цене 32 277 050 р, расположенная по адресу Москва, Западный (ЗАО), Можайский, ул Верейская, д 29 стр 32Б. Застройщик дома MR Group. Квартира сдается в III квартале 2028 года в 13 минутах на машине от метро Давыдково. Общая площадь квартиры - 63.5 м². Этаж 10 из 59. ID квартиры на СтройкиРУ 687818, сообщите его когда будете звонить.


















