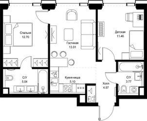
2-Комнатная квартира, 55.65 м², ID 687714
Обновлено Сегодня, 00:26
29 611 365 ₽
532 100 ₽ / м2
- ЖК
- ЖК СЕТ
- Срок сдачи
- III квартал 2028
- Застройщик
- нет данных
- Общая площадь
- 55.65 м2
- Жилая площадь
- 37.17 м2
- Площадь кухни
- 55.65 м2
- Этаж
- 40 из 59
- Отделка
- не указана
- ID
- 687714
Расположение
Описание
Двухкомнатная квартира, 55.65 м2 в ЖК СЕТ от
Продается 2-комн. квартира в новостройке ЖК СЕТ стоимостью 29 611 365 руб, по адресу Москва, Западный (ЗАО), Можайский, ул Верейская, д 29 стр 32Б. Застройщик MR Group. Квартира сдается в 3 квартале 2028 года в 13 минутах на машине от станции метро Давыдково. Общая площадь квартиры - 55.65 кв. м. Этаж 40 из 59. ID квартиры на СтройкиРУ 687714, скажите его когда будете звонить.


















