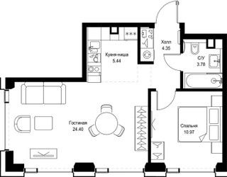
1-Комнатная квартира, 48.94 м², ID 687620
Обновлено Сегодня, 03:13
27 392 942 ₽
559 725 ₽ / м2
- ЖК
- ЖК СЕТ
- Срок сдачи
- III квартал 2028
- Застройщик
- нет данных
- Общая площадь
- 48.94 м2
- Жилая площадь
- 35.37 м2
- Площадь кухни
- 48.94 м2
- Этаж
- 34 из 59
- Отделка
- не указана
- ID
- 687620
Расположение
Описание
Однокомнатная квартира, 48.94 м2 в ЖК СЕТ от
Продается однокомнатная квартира в новостройке ЖК СЕТ за 27 392 942 р, находящаяся по адресу Москва, Западный (ЗАО), Можайский, ул Верейская, д 29 стр 32Б. Застройщик дома MR Group. Квартира сдается в III квартале 2028 года в 13 минутах на машине от станции метрополитена Давыдково. Общая площадь квартиры - 48.94 м². Этаж 34 из 59. ID квартиры на СтройкиРУ 687620, назовите его когда будете звонить.


















