1-Комнатная квартира, 38.3 м², ID 687492
Обновлено Сегодня, 00:24
22 462 950 ₽
586 500 ₽ / м2
- ЖК
- ЖК СЕТ
- Срок сдачи
- III квартал 2028
- Застройщик
- нет данных
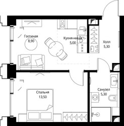
- Общая площадь
- 38.3 м2
- Жилая площадь
- 22.6 м2
- Площадь кухни
- 38.3 м2
- Этаж
- 19 из 59
- Отделка
- не указана
- ID
- 687492
Расположение
Описание
Однокомнатная квартира, 38.3 м2 в ЖК СЕТ от
Продается однокомнатная квартира в новостройке ЖК СЕТ за 22 462 950 р, находящаяся по адресу Москва, Западный (ЗАО), Можайский, ул Верейская, д 29 стр 32Б. Застройщик дома MR Group. Квартира сдается в III квартале 2028 года в 13 минутах на машине от станции метрополитена Давыдково. Общая площадь квартиры - 38.3 м². Этаж 19 из 59. ID квартиры на СтройкиРУ 687492, назовите его когда будете звонить.


















