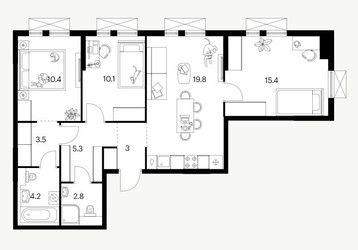
3-Комнатная квартира, 74.5 м², ID 483133
Обновлено Сегодня, 05:03
28 250 000 ₽
379 195 ₽ / м2
- Срок сдачи
- II квартал 2026
- Застройщик
- нет данных
- Общая площадь
- 74.5 м2
- Жилая площадь
- 35.9 м2
- Площадь кухни
- 19.8 м2
- Высота потолков
- 2.65 м
- Этаж
- 5 из 25
- Корпус
- 20
- Отделка
- Чистовая
- Санузел
- Раздельный
- ID
- 483133
Расположение
Описание
Трехкомнатная квартира, 74.5 м2 в ЖК Саларьево парк от
Продается 3-комн. квартира в новостройке ЖК Саларьево парк по цене 28 250 000 ₽, расположенная по адресу Москва, Новомосковский (НАО), Московский, ул Саларьевская. Строится компанией «ПИК». Квартира сдается в 2 квартале 2026 года с чистовой отделкой, в 10 минутах пешком от метро Саларьево. Общая площадь квартиры - 74.5 кв. м. Этаж 5. ID квартиры на СтройкиРУ 483133, сообщите его когда будете звонить.
Подробнее о ЖК Саларьево парк
Особенности
Ход строительства
Документация
- Разрешение на ввод 77-245000-010365-2021, корпус 41 21.10.20211.27 мб, pdf
- Проектная декларация № 77-001614, корпус 41 21.10.2021985.19 кб, pdf
- Схема планировочной организации земельного участка, корпус 41 27.09.20213.20 мб, pdf
- Экспертиза проектной документации, корпус 41 23.09.20212.63 мб, pdf
- Проект договора участия в долевом строительстве, корпус 41 12.10.20201.46 мб, pdf
- Заключение о степени готовности 77-245000-017387-2018, корпус 41 28.06.2019210.99 кб, pdf
- Извещение о начале строительства, корпус 41 21.06.2019892.25 кб, pdf
- Градостроительный план земельного участка, корпус 41 05.03.20193.27 мб, pdf
- Информация о выданных заключениях о соответствии застройщика и проектной декларации требованиям 214-ФЗ 77-001614 77-13-497/8, корпус 41 07.11.2018554.33 кб, pdf
- Разрешение на строительство 77-245000-017387-2018, корпус 41 21.06.20181.83 мб, pdf
- Разрешение на ввод 77-239000-009857-2020, корпус 18 30.12.20203.17 мб, pdf
- Проектная декларация № 77-001272, корпус 18 02.12.2020876.73 кб, pdf
- Схема планировочной организации земельного участка, корпус 18 27.07.202015.82 мб, pdf
- Экспертиза проектной документации, корпус 18 21.07.20202.67 мб, pdf
- Градостроительный план земельного участка, корпус 18 14.02.2020357.12 кб, pdf
- Проект договора участия в долевом строительстве, корпус 18 13.02.2020255.79 кб, pdf
- Сведения об уплате застройщиком обязательных отчислений, корпус 18 13.12.20191.36 мб, pdf
- Заключение о степени готовности 77-239000-016298-2018, корпус 18 28.06.2019190.24 кб, pdf
- Извещение о начале строительства, корпус 18 30.10.2018154.68 кб, pdf
- Разрешение на строительство 77-239000-016298-2018, корпус 18 30.01.20182.11 мб, pdf
- Разрешение на ввод 77-245000-010737-2022, корпус 43 20.04.20221.03 мб, pdf
- Проектная декларация № 77-001696, корпус 43 13.04.2022964.29 кб, pdf
- Схема планировочной организации земельного участка, корпус 43 03.03.20222.67 мб, pdf
- Экспертиза проектной документации, корпус 43 01.03.2022313.76 кб, pdf
- Проект договора участия в долевом строительстве, корпус 43 12.10.2020278.59 кб, pdf
- Заключение о степени готовности 77-245000-017390-2018, корпус 43 28.06.2019197.67 кб, pdf
- Извещение о начале строительства, корпус 43 21.06.2019889.35 кб, pdf
- Градостроительный план земельного участка, корпус 43 24.12.20183.27 мб, pdf
- Информация о выданных заключениях о соответствии застройщика и проектной декларации требованиям 214-ФЗ 77-001696 77-13-561/8, корпус 43 18.12.2018190.06 кб, pdf
- Разрешение на строительство 77-245000-017390-2018, корпус 43 21.06.20188.55 мб, pdf
- Проектная декларация № 77-002693, корпус 66 05.06.2023937.84 кб, pdf
- Проект договора участия в долевом строительстве, корпус 66 05.01.2023172.57 кб, pdf
- Схема планировочной организации земельного участка, корпус 66 16.09.20223.23 мб, pdf
- Экспертиза проектной документации, корпус 66 14.09.2022594.57 кб, pdf
- Извещение о начале строительства, корпус 66 24.08.20226.89 мб, pdf
- Разрешение на строительство 77-239000-020371-2022, корпус 66 09.08.20221.91 мб, pdf
- Градостроительный план земельного участка, корпус 66 09.06.20224.40 мб, pdf
- Разрешение на ввод 77-245000-009943-2021, корпус 24 01.03.20211,010.83 кб, pdf
- Проектная декларация № 77-001277, корпус 24 09.02.2021644.68 кб, pdf
- Экспертиза проектной документации, корпус 24 13.01.20212.64 мб, pdf
- Схема планировочной организации земельного участка, корпус 24 13.01.20213.73 мб, pdf
- Градостроительный план земельного участка, корпус 24 14.02.2020371.21 кб, pdf
- Проект договора участия в долевом строительстве, корпус 24 13.02.2020278.50 кб, pdf
- Сведения об уплате застройщиком обязательных отчислений, корпус 24 13.12.20191.84 мб, pdf
- Извещение о начале строительства, корпус 24 12.07.2019184.34 кб, pdf
- Заключение о степени готовности 77-245000-016274-2018, корпус 24 28.06.2019182.41 кб, pdf
- Информация о выданных заключениях о соответствии застройщика и проектной декларации требованиям 214-ФЗ 77-001277 77-13-230/8, корпус 24 14.06.2018266.99 кб, pdf
- Разрешение на строительство 77-245000-016274-2018, корпус 24 26.01.20181.10 мб, pdf
- Разрешение на ввод 77-245000-010152-2021, корпус 28 06.07.2021935.26 кб, pdf
- Проектная декларация № 77-001280, корпус 28 05.07.2021712.68 кб, pdf
- Схема планировочной организации земельного участка, корпус 28 03.06.20211.91 мб, pdf
- Экспертиза проектной документации, корпус 28 01.06.20212.25 мб, pdf
- Проект договора участия в долевом строительстве, корпус 28 07.10.2020492.46 кб, pdf
- Сведения об уплате застройщиком обязательных отчислений, корпус 28 13.12.2019816.08 кб, pdf
- Заключение о степени готовности 77-245000-017372-2018, корпус 28 28.06.2019194.33 кб, pdf
- Извещение о начале строительства, корпус 28 05.04.2019261.29 кб, pdf
- Градостроительный план земельного участка, корпус 28 05.03.20193.32 мб, pdf
- Информация о выданных заключениях о соответствии застройщика и проектной декларации требованиям 214-ФЗ 77-001280 77-13-359/8, корпус 28 27.07.201837.38 кб, pdf
- Разрешение на строительство 77-245000-017372-2018, корпус 28 20.06.20181.24 мб, pdf
- Разрешение на ввод 77-17-011314-2023, корпус 55 10.03.2023101.19 кб, pdf
- Проектная декларация № 77-002314, корпус 55 03.03.2023935.33 кб, pdf
- Схема планировочной организации земельного участка, корпус 55 18.01.20232.76 мб, pdf
- Экспертиза проектной документации, корпус 55 17.01.2023536.50 кб, pdf
- Проект договора участия в долевом строительстве, корпус 55 05.01.2023172.57 кб, pdf
- Извещение о начале строительства, корпус 55 21.09.2021216.59 кб, pdf
- Разрешение на строительство 77-245000-019703-2021, корпус 55 13.08.20212.00 мб, pdf
- Градостроительный план земельного участка, корпус 55 16.07.20212.95 мб, pdf
- Разрешение на ввод 77-245000-010606-2022, корпус 34 19.01.20221.12 мб, pdf
- Проектная декларация № 77-001606, корпус 34 04.01.2022939.33 кб, pdf
- Схема планировочной организации земельного участка, корпус 34 03.12.20213.11 мб, pdf
- Экспертиза проектной документации, корпус 34 01.12.20212.57 мб, pdf
- Проект договора участия в долевом строительстве, корпус 34 07.10.2020634.27 кб, pdf
- Заключение о степени готовности 77-245000-017363-2018, корпус 34 28.06.2019181.26 кб, pdf
- Извещение о начале строительства, корпус 34 21.06.2019888.94 кб, pdf
- Градостроительный план земельного участка, корпус 34 05.03.20193.32 мб, pdf
- Информация о выданных заключениях о соответствии застройщика и проектной декларации требованиям 214-ФЗ 77-001606 77-13-493/8, корпус 34 07.11.2018558.75 кб, pdf
- Разрешение на строительство 77-245000-017363-2018, корпус 34 20.06.20189.55 мб, pdf
- Разрешение на ввод 77-245000-010784-2022, корпус 46 27.05.20221.03 мб, pdf
- Проектная декларация № 77-001694, корпус 46 18.05.2022819.52 кб, pdf
- Схема планировочной организации земельного участка, корпус 46 18.04.2022988.73 кб, pdf
- Экспертиза проектной документации, корпус 46 15.04.2022629.44 кб, pdf
- Проект договора участия в долевом строительстве, корпус 46 12.10.20201.36 мб, pdf
- Сведения об уплате застройщиком обязательных отчислений, корпус 46 13.12.20196.99 мб, pdf
- Заключение о степени готовности 77-245000-017394-2018, корпус 46 28.06.2019194.90 кб, pdf
- Извещение о начале строительства, корпус 46 21.06.2019895.27 кб, pdf
- Градостроительный план земельного участка, корпус 46 24.12.20183.27 мб, pdf
- Информация о выданных заключениях о соответствии застройщика и проектной декларации требованиям 214-ФЗ 77-001694 77-13-563/8, корпус 46 18.12.2018185.12 кб, pdf
- Разрешение на строительство 77-245000-017394-2018, корпус 46 21.06.20185.29 мб, pdf
- Разрешение на ввод 77-17-011099-2022, корпус 50 06.12.2022170.39 кб, pdf
- Проектная декларация № 77-002249, корпус 50 05.12.2022994.27 кб, pdf
- Схема планировочной организации земельного участка, корпус 50 11.11.20222.68 мб, pdf
- Экспертиза проектной документации, корпус 50 10.11.2022586.68 кб, pdf
- Извещение о начале строительства, корпус 50 10.06.20214.37 мб, pdf
- Проект договора участия в долевом строительстве, корпус 50 07.06.2021220.17 кб, pdf
- Информация о выданных заключениях о соответствии застройщика и проектной декларации требованиям 214-ФЗ 77-002249 ЗОС/230/77-002249, корпус 50 04.06.2021611.78 кб, pdf
- Разрешение на строительство 77-245000-019547-2021, корпус 50 17.05.2021340.90 кб, pdf
- Градостроительный план земельного участка, корпус 50 26.04.20212.95 мб, pdf
- Разрешение на ввод 77-17-011103-2022, корпус 51 07.12.2022170.40 кб, pdf
- Проектная декларация № 77-002260, корпус 51 05.12.2022977.88 кб, pdf
- Схема планировочной организации земельного участка, корпус 51 22.11.20223.48 мб, pdf
- Экспертиза проектной документации, корпус 51 21.11.2022575.85 кб, pdf
- Проект договора участия в долевом строительстве, корпус 51 28.06.2021234.11 кб, pdf
- Информация о выданных заключениях о соответствии застройщика и проектной декларации требованиям 214-ФЗ 77-002260 ЗОС/241/77-002260, корпус 51 22.06.2021625.34 кб, pdf
- Извещение о начале строительства, корпус 51 22.06.20214.70 мб, pdf
- Разрешение на строительство 77-245000-019568-2021, корпус 51 27.05.2021377.24 кб, pdf
- Градостроительный план земельного участка, корпус 51 24.05.20212.95 мб, pdf
- Разрешение на ввод 77-17-011200-2022, корпус 53 30.12.2022171.04 кб, pdf
- Проектная декларация № 77-002291, корпус 53 16.12.2022986.13 кб, pdf
- Схема планировочной организации земельного участка, корпус 53 16.12.20224.14 мб, pdf
- Экспертиза проектной документации, корпус 53 14.12.2022518.15 кб, pdf
- Извещение о начале строительства, корпус 53 29.07.2021206.28 кб, pdf
- Проект договора участия в долевом строительстве, корпус 53 26.07.2021223.87 кб, pdf
- Градостроительный план земельного участка, корпус 53 16.07.20212.95 мб, pdf
- Разрешение на строительство 77-245000-019664-2021, корпус 53 15.07.2021287.72 кб, pdf
- Разрешение на ввод 77-17-011063-2022, корпус 49 16.11.2022122.95 кб, pdf
- Проектная декларация № 77-002233, корпус 49 03.11.2022945.67 кб, pdf
- Схема планировочной организации земельного участка, корпус 49 19.10.20222.99 мб, pdf
- Экспертиза проектной документации, корпус 49 17.10.2022545.14 кб, pdf
- Извещение о начале строительства, корпус 49 26.05.20214.86 мб, pdf
- Проект договора участия в долевом строительстве, корпус 49 26.05.2021473.98 кб, pdf
- Информация о выданных заключениях о соответствии застройщика и проектной декларации требованиям 214-ФЗ 77-002233 ЗОС/226/77-002233, корпус 49 26.05.2021630.11 кб, pdf
- Разрешение на строительство 77-245000-019511-2021, корпус 49 19.04.2021340.11 кб, pdf
- Градостроительный план земельного участка, корпус 49 16.04.20212.95 мб, pdf
- Разрешение на ввод 77-17-011200-2022, корпус 52 30.12.2022171.04 кб, pdf
- Проектная декларация № 77-002291, корпус 52 16.12.2022986.13 кб, pdf
- Схема планировочной организации земельного участка, корпус 52 16.12.20224.14 мб, pdf
- Экспертиза проектной документации, корпус 52 14.12.2022518.15 кб, pdf
- Извещение о начале строительства, корпус 52 29.07.2021206.28 кб, pdf
- Проект договора участия в долевом строительстве, корпус 52 26.07.2021223.87 кб, pdf
- Градостроительный план земельного участка, корпус 52 16.07.20212.95 мб, pdf
- Разрешение на строительство 77-245000-019664-2021, корпус 52 15.07.2021287.72 кб, pdf
- Разрешение на ввод 77-17-011200-2022, корпус 54 30.12.2022171.04 кб, pdf
- Схема планировочной организации земельного участка, корпус 54 16.12.20224.14 мб, pdf
- Проектная декларация № 77-002291, корпус 54 16.12.2022986.13 кб, pdf
- Экспертиза проектной документации, корпус 54 14.12.2022518.15 кб, pdf
- Извещение о начале строительства, корпус 54 29.07.2021206.28 кб, pdf
- Проект договора участия в долевом строительстве, корпус 54 26.07.2021223.87 кб, pdf
- Градостроительный план земельного участка, корпус 54 16.07.20212.95 мб, pdf
- Разрешение на строительство 77-245000-019664-2021, корпус 54 15.07.2021287.72 кб, pdf
- Разрешение на ввод 77-17-011056-2022, корпус 48.1 14.11.2022168.93 кб, pdf
- Проектная декларация № 77-002221, корпус 48.1 03.11.20221.25 мб, pdf
- Проект договора участия в долевом строительстве, корпус 48.1 04.10.2022538.32 кб, pdf
- Схема планировочной организации земельного участка, корпус 48.1 16.09.20223.55 мб, pdf
- Экспертиза проектной документации, корпус 48.1 09.09.2022851.85 кб, pdf
- Извещение о начале строительства, корпус 48.1 17.05.20214.15 мб, pdf
- Информация о выданных заключениях о соответствии застройщика и проектной декларации требованиям 214-ФЗ 77-002221 ЗОС/207/77-002221, корпус 48.1 28.04.2021615.24 кб, pdf
- Разрешение на строительство 77-245000-019487-2021, корпус 48.1 08.04.20212.11 мб, pdf
- Градостроительный план земельного участка, корпус 48.1 17.11.20202.95 мб, pdf
- Разрешение на ввод 77-17-011056-2022, корпус 48.3 14.11.2022168.93 кб, pdf
- Проектная декларация № 77-002221, корпус 48.3 03.11.20221.25 мб, pdf
- Проект договора участия в долевом строительстве, корпус 48.3 04.10.2022538.32 кб, pdf
- Схема планировочной организации земельного участка, корпус 48.3 16.09.20223.55 мб, pdf
- Экспертиза проектной документации, корпус 48.3 09.09.2022851.85 кб, pdf
- Извещение о начале строительства, корпус 48.3 17.05.20214.15 мб, pdf
- Информация о выданных заключениях о соответствии застройщика и проектной декларации требованиям 214-ФЗ 77-002221 ЗОС/207/77-002221, корпус 48.3 28.04.2021615.24 кб, pdf
- Разрешение на строительство 77-245000-019487-2021, корпус 48.3 08.04.20212.11 мб, pdf
- Градостроительный план земельного участка, корпус 48.3 17.11.20202.95 мб, pdf
- Разрешение на ввод 77-245000-010778-2022, корпус 45 25.05.20221,017.30 кб, pdf
- Проектная декларация № 77-001695, корпус 45 17.05.2022822.94 кб, pdf
- Схема планировочной организации земельного участка, корпус 45 15.04.20221.80 мб, pdf
- Экспертиза проектной документации, корпус 45 13.04.2022625.88 кб, pdf
- Проект договора участия в долевом строительстве, корпус 45 12.10.2020814.91 кб, pdf
- Заключение о степени готовности 77-245000-017393-2018, корпус 45 28.06.2019178.16 кб, pdf
- Извещение о начале строительства, корпус 45 21.06.2019891.69 кб, pdf
- Градостроительный план земельного участка, корпус 45 24.12.20183.27 мб, pdf
- Информация о выданных заключениях о соответствии застройщика и проектной декларации требованиям 214-ФЗ 77-001695 77-13-562/8, корпус 45 18.12.2018188.06 кб, pdf
- Разрешение на строительство 77-245000-017393-2018, корпус 45 21.06.20185.22 мб, pdf
- Разрешение на ввод 77-17-011056-2022, корпус 48.4 14.11.2022168.93 кб, pdf
- Проектная декларация № 77-002221, корпус 48.4 03.11.20221.25 мб, pdf
- Проект договора участия в долевом строительстве, корпус 48.4 04.10.2022538.32 кб, pdf
- Схема планировочной организации земельного участка, корпус 48.4 16.09.20223.55 мб, pdf
- Экспертиза проектной документации, корпус 48.4 09.09.2022851.85 кб, pdf
- Извещение о начале строительства, корпус 48.4 17.05.20214.15 мб, pdf
- Информация о выданных заключениях о соответствии застройщика и проектной декларации требованиям 214-ФЗ 77-002221 ЗОС/207/77-002221, корпус 48.4 28.04.2021615.24 кб, pdf
- Разрешение на строительство 77-245000-019487-2021, корпус 48.4 08.04.20212.11 мб, pdf
- Градостроительный план земельного участка, корпус 48.4 17.11.20202.95 мб, pdf
- Разрешение на ввод 77-17-011056-2022, корпус 48.2 14.11.2022168.93 кб, pdf
- Проектная декларация № 77-002221, корпус 48.2 03.11.20221.25 мб, pdf
- Проект договора участия в долевом строительстве, корпус 48.2 04.10.2022538.32 кб, pdf
- Схема планировочной организации земельного участка, корпус 48.2 16.09.20223.55 мб, pdf
- Экспертиза проектной документации, корпус 48.2 09.09.2022851.85 кб, pdf
- Извещение о начале строительства, корпус 48.2 17.05.20214.15 мб, pdf
- Информация о выданных заключениях о соответствии застройщика и проектной декларации требованиям 214-ФЗ 77-002221 ЗОС/207/77-002221, корпус 48.2 28.04.2021615.24 кб, pdf
- Разрешение на строительство 77-245000-019487-2021, корпус 48.2 08.04.20212.11 мб, pdf
- Градостроительный план земельного участка, корпус 48.2 17.11.20202.95 мб, pdf
- Разрешение на ввод 77-239000-009861-2020, корпус 22 30.12.20202.02 мб, pdf
- Проектная декларация № 77-001275, корпус 22 02.12.2020627.47 кб, pdf
- Схема планировочной организации земельного участка, корпус 22 22.10.20202.22 мб, pdf
- Экспертиза проектной документации, корпус 22 21.10.20202.26 мб, pdf
- Градостроительный план земельного участка, корпус 22 14.02.2020349.49 кб, pdf
- Проект договора участия в долевом строительстве, корпус 22 13.02.2020290.16 кб, pdf
- Заключение о степени готовности 77-239000-016250-2018, корпус 22 28.06.2019187.21 кб, pdf
- Извещение о начале строительства, корпус 22 30.10.2018153.22 кб, pdf
- Сведения об уплате застройщиком обязательных отчислений, корпус 22 24.10.20181.48 мб, pdf
- Информация о выданных заключениях о соответствии застройщика и проектной декларации требованиям 214-ФЗ 77-001275 77-13-236/8, корпус 22 14.06.2018264.66 кб, pdf
- Разрешение на строительство 77-239000-016250-2018, корпус 22 24.01.20184.15 мб, pdf
- Разрешение на ввод 77-245000-010208-2021, корпус 27 11.08.20211.28 мб, pdf
- Проектная декларация № 77-001279, корпус 27 04.08.2021947.64 кб, pdf
- Схема планировочной организации земельного участка, корпус 27 16.07.20211.91 мб, pdf
- Экспертиза проектной документации, корпус 27 15.07.2021864.84 кб, pdf
- Проект договора участия в долевом строительстве, корпус 27 07.10.2020985.10 кб, pdf
- Сведения об уплате застройщиком обязательных отчислений, корпус 27 13.12.2019828.11 кб, pdf
- Заключение о степени готовности 77-245000-017373-2018, корпус 27 01.07.2019227.45 кб, pdf
- Извещение о начале строительства, корпус 27 07.03.2019449.85 кб, pdf
- Градостроительный план земельного участка, корпус 27 05.03.20193.32 мб, pdf
- Информация о выданных заключениях о соответствии застройщика и проектной декларации требованиям 214-ФЗ 77-001279 77-13-360/8, корпус 27 27.07.201837.99 кб, pdf
- Разрешение на строительство 77-245000-017373-2018, корпус 27 20.06.2018834.29 кб, pdf
- Разрешение на ввод 77-245000-009944-2021, корпус 25 01.03.2021958.58 кб, pdf
- Проектная декларация № 77-001278, корпус 25 09.02.2021633.09 кб, pdf
- Схема планировочной организации земельного участка, корпус 25 13.01.20213.14 мб, pdf
- Экспертиза проектной документации, корпус 25 13.01.20212.44 мб, pdf
- Градостроительный план земельного участка, корпус 25 14.02.2020371.21 кб, pdf
- Проект договора участия в долевом строительстве, корпус 25 13.02.2020265.08 кб, pdf
- Сведения об уплате застройщиком обязательных отчислений, корпус 25 13.12.2019714.76 кб, pdf
- Извещение о начале строительства, корпус 25 12.07.2019184.28 кб, pdf
- Заключение о степени готовности 77-245000-016277-2018, корпус 25 28.06.2019182.45 кб, pdf
- Информация о выданных заключениях о соответствии застройщика и проектной декларации требованиям 214-ФЗ 77-001278 77-13-231/8, корпус 25 14.06.2018261.44 кб, pdf
- Разрешение на строительство 77-245000-016277-2018, корпус 25 26.01.20181.05 мб, pdf
- Разрешение на ввод 77-245000-010139-2021, корпус 29 30.06.2021937.60 кб, pdf
- Проектная декларация № 77-001281, корпус 29 16.06.2021703.14 кб, pdf
- Схема планировочной организации земельного участка, корпус 29 03.06.20212.02 мб, pdf
- Экспертиза проектной документации, корпус 29 01.06.20212.22 мб, pdf
- Проект договора участия в долевом строительстве, корпус 29 07.10.2020492.12 кб, pdf
- Сведения об уплате застройщиком обязательных отчислений, корпус 29 13.12.2019826.30 кб, pdf
- Заключение о степени готовности 77-245000-017374-2018, корпус 29 28.06.2019178.40 кб, pdf
- Извещение о начале строительства, корпус 29 21.06.2019892.35 кб, pdf
- Градостроительный план земельного участка, корпус 29 05.03.20193.32 мб, pdf
- Информация о выданных заключениях о соответствии застройщика и проектной декларации требованиям 214-ФЗ 77-001281 77-13-358/8, корпус 29 27.07.201837.03 кб, pdf
- Разрешение на строительство 77-245000-017374-2018, корпус 29 20.06.20181.15 мб, pdf
- Проектная декларация № 77-001267, корпус 14 04.04.2020830.30 кб, pdf
- Разрешение на ввод 77-239000-009443-2020, корпус 14 25.03.20202.46 мб, pdf
- Схема планировочной организации земельного участка, корпус 14 14.02.20203.64 мб, pdf
- Градостроительный план земельного участка, корпус 14 14.02.20204.52 мб, pdf
- Проект договора участия в долевом строительстве, корпус 14 14.02.2020362.18 кб, pdf
- Экспертиза проектной документации, корпус 14 18.12.20191.51 мб, pdf
- Сведения об уплате застройщиком обязательных отчислений, корпус 14 13.12.20191.17 мб, pdf
- Заключение о степени готовности 77-239000-015668-2017, корпус 14 28.06.2019191.40 кб, pdf
- Извещение о начале строительства, корпус 14 30.10.2018154.32 кб, pdf
- Разрешение на строительство 77-239000-015668-2017, корпус 14 31.10.20172.12 мб, pdf
- Разрешение на ввод 77-245000-009988-2021, корпус 38 30.03.2021962.60 кб, pdf
- Проектная декларация № 77-001607, корпус 38 19.03.2021648.29 кб, pdf
- Схема планировочной организации земельного участка, корпус 38 17.03.20211.83 мб, pdf
- Экспертиза проектной документации, корпус 38 15.03.20213.57 мб, pdf
- Проект договора участия в долевом строительстве, корпус 38 12.10.2020434.20 кб, pdf
- Сведения об уплате застройщиком обязательных отчислений, корпус 38 13.12.20191.99 мб, pdf
- Заключение о степени готовности 77-245000-017391-2018, корпус 38 28.06.2019185.25 кб, pdf
- Извещение о начале строительства, корпус 38 19.03.20191.83 мб, pdf
- Градостроительный план земельного участка, корпус 38 05.03.20193.27 мб, pdf
- Информация о выданных заключениях о соответствии застройщика и проектной декларации требованиям 214-ФЗ 77-001607 77-13-494/8, корпус 38 07.11.2018545.61 кб, pdf
- Разрешение на строительство 77-245000-017391-2018, корпус 38 21.06.20181.19 мб, pdf



























































