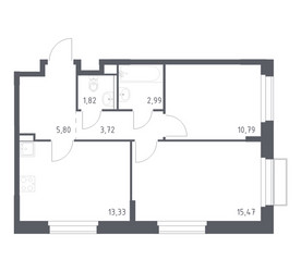
2-Комнатная квартира, 53.92 м², ID 702055
Обновлено Сегодня, 02:01
15 476 550 ₽
287 028 ₽ / м2
- Срок сдачи
- IV квартал 2027
- Застройщик
- нет данных
- Общая площадь
- 53.92 м2
- Жилая площадь
- 26.26 м2
- Площадь кухни
- 53.92 м2
- Этаж
- 7 из 14
- Отделка
- Черновая
- ID
- 702055
Расположение
Описание
Двухкомнатная квартира, 53.92 м2 в ЖК Новое Внуково от
Продается 2-комн. квартира в новостройке ЖК Новое Внуково стоимостью 15 476 550 ₽, по адресу Москва, Новомосковский (НАО), Кокошкино, поселение Кокошкино, дп Кокошкино, ул Горького. Строится компанией Группа "Самолет". Квартира сдается в 2 квартале 2026 года с черновой отделкой, в 36 минутах на машине от станции метро Пыхтино. Общая площадь квартиры - 53.92 кв. м. Этаж 7 из 10. ID квартиры на СтройкиРУ 702055, скажите его когда будете звонить.
Подробнее о ЖК Новое Внуково
Особенности
Ход строительства
Документация
- Проектная декларация № 77-002815, корпус 27 09.06.2023864.64 кб, pdf
- Проект договора участия в долевом строительстве, корпус 27 09.06.2023740.96 кб, pdf
- Извещение о начале строительства, корпус 27 17.03.2023103.54 кб, pdf
- Схема планировочной организации земельного участка, корпус 27 26.01.202347.49 мб, pdf
- Градостроительный план земельного участка, корпус 27 26.01.20237.22 мб, pdf
- Разрешение на строительство 77-18-020638-2023, корпус 27 23.01.2023185.32 кб, pdf
- Экспертиза проектной документации, корпус 27 30.12.20222.01 мб, pdf
- Проект договора участия в долевом строительстве, корпус 26 09.06.2023740.96 кб, pdf
- Проектная декларация № 77-002815, корпус 26 09.06.2023864.64 кб, pdf
- Извещение о начале строительства, корпус 26 17.03.2023103.54 кб, pdf
- Градостроительный план земельного участка, корпус 26 26.01.20237.22 мб, pdf
- Схема планировочной организации земельного участка, корпус 26 26.01.202347.49 мб, pdf
- Разрешение на строительство 77-18-020638-2023, корпус 26 23.01.2023185.32 кб, pdf
- Экспертиза проектной документации, корпус 26 30.12.20222.01 мб, pdf
- Проект договора участия в долевом строительстве, корпус 25 09.06.2023740.96 кб, pdf
- Проектная декларация № 77-002815, корпус 25 09.06.2023864.64 кб, pdf
- Извещение о начале строительства, корпус 25 17.03.2023103.54 кб, pdf
- Схема планировочной организации земельного участка, корпус 25 26.01.202347.49 мб, pdf
- Градостроительный план земельного участка, корпус 25 26.01.20237.22 мб, pdf
- Разрешение на строительство 77-18-020638-2023, корпус 25 23.01.2023185.32 кб, pdf
- Экспертиза проектной документации, корпус 25 30.12.20222.01 мб, pdf
- Проект договора участия в долевом строительстве, корпус 24 09.06.2023740.96 кб, pdf
- Проектная декларация № 77-002815, корпус 24 09.06.2023864.64 кб, pdf
- Извещение о начале строительства, корпус 24 17.03.2023103.54 кб, pdf
- Схема планировочной организации земельного участка, корпус 24 26.01.202347.49 мб, pdf
- Градостроительный план земельного участка, корпус 24 26.01.20237.22 мб, pdf
- Разрешение на строительство 77-18-020638-2023, корпус 24 23.01.2023185.32 кб, pdf
- Экспертиза проектной документации, корпус 24 30.12.20222.01 мб, pdf
- Проект договора участия в долевом строительстве, корпус 23 09.06.2023740.96 кб, pdf
- Проектная декларация № 77-002815, корпус 23 09.06.2023864.64 кб, pdf
- Извещение о начале строительства, корпус 23 17.03.2023103.54 кб, pdf
- Схема планировочной организации земельного участка, корпус 23 26.01.202347.49 мб, pdf
- Градостроительный план земельного участка, корпус 23 26.01.20237.22 мб, pdf
- Разрешение на строительство 77-18-020638-2023, корпус 23 23.01.2023185.32 кб, pdf
- Экспертиза проектной документации, корпус 23 30.12.20222.01 мб, pdf
- Проектная декларация № 77-002768, корпус 22 09.06.2023529.19 кб, pdf
- Проект договора участия в долевом строительстве, корпус 22 09.06.2023740.96 кб, pdf
- Извещение о начале строительства, корпус 22 30.12.202262.85 кб, pdf
- Схема планировочной организации земельного участка, корпус 22 24.10.202223.81 мб, pdf
- Градостроительный план земельного участка, корпус 22 24.10.20227.22 мб, pdf
- Разрешение на строительство 77-18-020486-2022, корпус 22 20.10.2022169.99 кб, pdf
- Экспертиза проектной документации, корпус 22 07.10.20222.15 мб, pdf
- Проектная декларация № 77-002768, корпус 21 09.06.2023529.19 кб, pdf
- Проект договора участия в долевом строительстве, корпус 21 09.06.2023740.96 кб, pdf
- Извещение о начале строительства, корпус 21 30.12.202262.85 кб, pdf
- Схема планировочной организации земельного участка, корпус 21 24.10.202223.81 мб, pdf
- Градостроительный план земельного участка, корпус 21 24.10.20227.22 мб, pdf
- Разрешение на строительство 77-18-020486-2022, корпус 21 20.10.2022169.99 кб, pdf
- Экспертиза проектной документации, корпус 21 07.10.20222.15 мб, pdf
- Проект договора участия в долевом строительстве, корпус 20 09.06.2023740.96 кб, pdf
- Проектная декларация № 77-002768, корпус 20 09.06.2023529.19 кб, pdf
- Извещение о начале строительства, корпус 20 30.12.202262.85 кб, pdf
- Схема планировочной организации земельного участка, корпус 20 24.10.202223.81 мб, pdf
- Градостроительный план земельного участка, корпус 20 24.10.20227.22 мб, pdf
- Разрешение на строительство 77-18-020486-2022, корпус 20 20.10.2022169.99 кб, pdf
- Экспертиза проектной документации, корпус 20 07.10.20222.15 мб, pdf
- Проект договора участия в долевом строительстве, корпус 19 09.06.2023740.96 кб, pdf
- Проектная декларация № 77-002767, корпус 19 09.06.2023543.76 кб, pdf
- Извещение о начале строительства, корпус 19 30.12.202266.40 кб, pdf
- Схема планировочной организации земельного участка, корпус 19 24.10.202224.82 мб, pdf
- Градостроительный план земельного участка, корпус 19 20.10.20229.69 мб, pdf
- Разрешение на строительство 77-18-020478-2022, корпус 19 17.10.2022170.70 кб, pdf
- Экспертиза проектной документации, корпус 19 07.10.20222.15 мб, pdf
- Проект договора участия в долевом строительстве, корпус 18 09.06.2023740.96 кб, pdf
- Проектная декларация № 77-002767, корпус 18 09.06.2023543.76 кб, pdf
- Извещение о начале строительства, корпус 18 30.12.202266.40 кб, pdf
- Схема планировочной организации земельного участка, корпус 18 24.10.202224.82 мб, pdf
- Градостроительный план земельного участка, корпус 18 20.10.20229.69 мб, pdf
- Разрешение на строительство 77-18-020478-2022, корпус 18 17.10.2022170.70 кб, pdf
- Экспертиза проектной документации, корпус 18 07.10.20222.15 мб, pdf
- Проект договора участия в долевом строительстве, корпус 17 09.06.2023740.96 кб, pdf
- Проектная декларация № 77-002767, корпус 17 09.06.2023543.76 кб, pdf
- Извещение о начале строительства, корпус 17 30.12.202266.40 кб, pdf
- Схема планировочной организации земельного участка, корпус 17 24.10.202224.82 мб, pdf
- Градостроительный план земельного участка, корпус 17 20.10.20229.69 мб, pdf
- Разрешение на строительство 77-18-020478-2022, корпус 17 17.10.2022170.70 кб, pdf
- Экспертиза проектной документации, корпус 17 07.10.20222.15 мб, pdf
- Проектная декларация № 77-002475, корпус 13 09.06.2023951.15 кб, pdf
- Проект договора участия в долевом строительстве, корпус 13 09.06.2023740.96 кб, pdf
- Извещение о начале строительства, корпус 13 18.05.202264.08 кб, pdf
- Градостроительный план земельного участка, корпус 13 25.04.20222.82 мб, pdf
- Схема планировочной организации земельного участка, корпус 13 24.04.20221.15 мб, pdf
- Разрешение на строительство 77-235000-020151-2022, корпус 13 22.04.20222.36 мб, pdf
- Экспертиза проектной документации, корпус 13 16.11.20211.86 мб, xml
- Проект договора участия в долевом строительстве, корпус 14 09.06.2023740.96 кб, pdf
- Проектная декларация № 77-002475, корпус 14 09.06.2023951.15 кб, pdf
- Извещение о начале строительства, корпус 14 18.05.202264.08 кб, pdf
- Градостроительный план земельного участка, корпус 14 25.04.20222.82 мб, pdf
- Схема планировочной организации земельного участка, корпус 14 24.04.20221.15 мб, pdf
- Разрешение на строительство 77-235000-020151-2022, корпус 14 22.04.20222.36 мб, pdf
- Экспертиза проектной документации, корпус 14 16.11.20211.86 мб, xml
- Проектная декларация № 77-002475, корпус 15 09.06.2023951.15 кб, pdf
- Проект договора участия в долевом строительстве, корпус 15 09.06.2023740.96 кб, pdf
- Извещение о начале строительства, корпус 15 18.05.202264.08 кб, pdf
- Градостроительный план земельного участка, корпус 15 25.04.20222.82 мб, pdf
- Схема планировочной организации земельного участка, корпус 15 24.04.20221.15 мб, pdf
- Разрешение на строительство 77-235000-020151-2022, корпус 15 22.04.20222.36 мб, pdf
- Экспертиза проектной документации, корпус 15 16.11.20211.86 мб, xml
- Проект договора участия в долевом строительстве, корпус 16 09.06.2023740.96 кб, pdf
- Проектная декларация № 77-002475, корпус 16 09.06.2023951.15 кб, pdf
- Извещение о начале строительства, корпус 16 18.05.202264.08 кб, pdf
- Градостроительный план земельного участка, корпус 16 25.04.20222.82 мб, pdf
- Схема планировочной организации земельного участка, корпус 16 24.04.20221.15 мб, pdf
- Разрешение на строительство 77-235000-020151-2022, корпус 16 22.04.20222.36 мб, pdf
- Экспертиза проектной документации, корпус 16 16.11.20211.86 мб, xml
- Проект договора участия в долевом строительстве, корпус 12 09.06.2023740.96 кб, pdf
- Проектная декларация № 77-002475, корпус 12 09.06.2023951.15 кб, pdf
- Извещение о начале строительства, корпус 12 18.05.202264.08 кб, pdf
- Градостроительный план земельного участка, корпус 12 25.04.20222.82 мб, pdf
- Схема планировочной организации земельного участка, корпус 12 24.04.20221.15 мб, pdf
- Разрешение на строительство 77-235000-020151-2022, корпус 12 22.04.20222.36 мб, pdf
- Экспертиза проектной документации, корпус 12 16.11.20211.86 мб, xml
- Проект договора участия в долевом строительстве, корпус 11 09.06.2023740.96 кб, pdf
- Проектная декларация № 77-002475, корпус 11 09.06.2023951.15 кб, pdf
- Извещение о начале строительства, корпус 11 18.05.202264.08 кб, pdf
- Градостроительный план земельного участка, корпус 11 25.04.20222.82 мб, pdf
- Схема планировочной организации земельного участка, корпус 11 24.04.20221.15 мб, pdf
- Разрешение на строительство 77-235000-020151-2022, корпус 11 22.04.20222.36 мб, pdf
- Экспертиза проектной документации, корпус 11 16.11.20211.86 мб, xml
- Проектная декларация № 77-002155, корпус 10 09.03.2023961.08 кб, pdf
- Разрешение на ввод 77-18-011290-2023, корпус 10 20.02.2023181.67 кб, pdf
- Проект договора участия в долевом строительстве, корпус 10 09.09.2022730.82 кб, pdf
- Извещение о начале строительства, корпус 10 08.02.2021848.35 кб, pdf
- Информация о выданных заключениях о соответствии застройщика и проектной декларации требованиям 214-ФЗ 77-002155 ЗОС/150/77-002155, корпус 10 14.01.2021619.74 кб, pdf
- Разрешение на строительство 77-235000-019305-2020, корпус 10 24.12.20201.33 мб, pdf
- Схема планировочной организации земельного участка, корпус 10 15.09.20204.12 мб, pdf
- Градостроительный план земельного участка, корпус 10 03.09.20201.99 мб, pdf
- Экспертиза проектной документации, корпус 10 09.07.2020900.44 кб, pdf
- Проектная декларация № 77-002155, корпус 9 09.03.2023961.08 кб, pdf
- Разрешение на ввод 77-18-011290-2023, корпус 9 20.02.2023181.67 кб, pdf
- Проект договора участия в долевом строительстве, корпус 9 09.09.2022730.82 кб, pdf
- Извещение о начале строительства, корпус 9 08.02.2021848.35 кб, pdf
- Информация о выданных заключениях о соответствии застройщика и проектной декларации требованиям 214-ФЗ 77-002155 ЗОС/150/77-002155, корпус 9 14.01.2021619.74 кб, pdf
- Разрешение на строительство 77-235000-019305-2020, корпус 9 24.12.20201.33 мб, pdf
- Схема планировочной организации земельного участка, корпус 9 15.09.20204.12 мб, pdf
- Градостроительный план земельного участка, корпус 9 03.09.20201.99 мб, pdf
- Экспертиза проектной документации, корпус 9 09.07.2020900.44 кб, pdf
- Проектная декларация № 77-002155, корпус 8 09.03.2023961.08 кб, pdf
- Разрешение на ввод 77-18-011290-2023, корпус 8 20.02.2023181.67 кб, pdf
- Проект договора участия в долевом строительстве, корпус 8 09.09.2022730.82 кб, pdf
- Извещение о начале строительства, корпус 8 08.02.2021848.35 кб, pdf
- Информация о выданных заключениях о соответствии застройщика и проектной декларации требованиям 214-ФЗ 77-002155 ЗОС/150/77-002155, корпус 8 14.01.2021619.74 кб, pdf
- Разрешение на строительство 77-235000-019305-2020, корпус 8 24.12.20201.33 мб, pdf
- Схема планировочной организации земельного участка, корпус 8 15.09.20204.12 мб, pdf
- Градостроительный план земельного участка, корпус 8 03.09.20201.99 мб, pdf
- Экспертиза проектной документации, корпус 8 09.07.2020900.44 кб, pdf
- Проектная декларация № 77-002155, корпус 7 09.03.2023961.08 кб, pdf
- Разрешение на ввод 77-18-011290-2023, корпус 7 20.02.2023181.67 кб, pdf
- Проект договора участия в долевом строительстве, корпус 7 09.09.2022730.82 кб, pdf
- Извещение о начале строительства, корпус 7 08.02.2021848.35 кб, pdf
- Информация о выданных заключениях о соответствии застройщика и проектной декларации требованиям 214-ФЗ 77-002155 ЗОС/150/77-002155, корпус 7 14.01.2021619.74 кб, pdf
- Разрешение на строительство 77-235000-019305-2020, корпус 7 24.12.20201.33 мб, pdf
- Схема планировочной организации земельного участка, корпус 7 15.09.20204.12 мб, pdf
- Градостроительный план земельного участка, корпус 7 03.09.20201.99 мб, pdf
- Экспертиза проектной документации, корпус 7 09.07.2020900.44 кб, pdf
- Проектная декларация № 77-002155, корпус 6 09.03.2023961.08 кб, pdf
- Разрешение на ввод 77-18-011290-2023, корпус 6 20.02.2023181.67 кб, pdf
- Проект договора участия в долевом строительстве, корпус 6 09.09.2022730.82 кб, pdf
- Извещение о начале строительства, корпус 6 08.02.2021848.35 кб, pdf
- Информация о выданных заключениях о соответствии застройщика и проектной декларации требованиям 214-ФЗ 77-002155 ЗОС/150/77-002155, корпус 6 14.01.2021619.74 кб, pdf
- Разрешение на строительство 77-235000-019305-2020, корпус 6 24.12.20201.33 мб, pdf
- Схема планировочной организации земельного участка, корпус 6 15.09.20204.12 мб, pdf
- Градостроительный план земельного участка, корпус 6 03.09.20201.99 мб, pdf
- Экспертиза проектной документации, корпус 6 09.07.2020900.44 кб, pdf
- Проектная декларация № 77-002155, корпус 5 09.03.2023961.08 кб, pdf
- Разрешение на ввод 77-18-011290-2023, корпус 5 20.02.2023181.67 кб, pdf
- Проект договора участия в долевом строительстве, корпус 5 09.09.2022730.82 кб, pdf
- Извещение о начале строительства, корпус 5 08.02.2021848.35 кб, pdf
- Информация о выданных заключениях о соответствии застройщика и проектной декларации требованиям 214-ФЗ 77-002155 ЗОС/150/77-002155, корпус 5 14.01.2021619.74 кб, pdf
- Разрешение на строительство 77-235000-019305-2020, корпус 5 24.12.20201.33 мб, pdf
- Схема планировочной организации земельного участка, корпус 5 15.09.20204.12 мб, pdf
- Градостроительный план земельного участка, корпус 5 03.09.20201.99 мб, pdf
- Экспертиза проектной документации, корпус 5 09.07.2020900.44 кб, pdf
- Проектная декларация № 77-002155, корпус 4 09.03.2023961.08 кб, pdf
- Разрешение на ввод 77-18-011290-2023, корпус 4 20.02.2023181.67 кб, pdf
- Проект договора участия в долевом строительстве, корпус 4 09.09.2022730.82 кб, pdf
- Извещение о начале строительства, корпус 4 08.02.2021848.35 кб, pdf
- Информация о выданных заключениях о соответствии застройщика и проектной декларации требованиям 214-ФЗ 77-002155 ЗОС/150/77-002155, корпус 4 14.01.2021619.74 кб, pdf
- Разрешение на строительство 77-235000-019305-2020, корпус 4 24.12.20201.33 мб, pdf
- Схема планировочной организации земельного участка, корпус 4 15.09.20204.12 мб, pdf
- Градостроительный план земельного участка, корпус 4 03.09.20201.99 мб, pdf
- Экспертиза проектной документации, корпус 4 09.07.2020900.44 кб, pdf
- Проектная декларация № 77-002155, корпус 3 09.03.2023961.08 кб, pdf
- Разрешение на ввод 77-18-011290-2023, корпус 3 20.02.2023181.67 кб, pdf
- Проект договора участия в долевом строительстве, корпус 3 09.09.2022730.82 кб, pdf
- Извещение о начале строительства, корпус 3 08.02.2021848.35 кб, pdf
- Информация о выданных заключениях о соответствии застройщика и проектной декларации требованиям 214-ФЗ 77-002155 ЗОС/150/77-002155, корпус 3 14.01.2021619.74 кб, pdf
- Разрешение на строительство 77-235000-019305-2020, корпус 3 24.12.20201.33 мб, pdf
- Схема планировочной организации земельного участка, корпус 3 15.09.20204.12 мб, pdf
- Градостроительный план земельного участка, корпус 3 03.09.20201.99 мб, pdf
- Экспертиза проектной документации, корпус 3 09.07.2020900.44 кб, pdf
- Проектная декларация № 77-002155, корпус 2 09.03.2023961.08 кб, pdf
- Разрешение на ввод 77-18-011290-2023, корпус 2 20.02.2023181.67 кб, pdf
- Проект договора участия в долевом строительстве, корпус 2 09.09.2022730.82 кб, pdf
- Извещение о начале строительства, корпус 2 08.02.2021848.35 кб, pdf
- Информация о выданных заключениях о соответствии застройщика и проектной декларации требованиям 214-ФЗ 77-002155 ЗОС/150/77-002155, корпус 2 14.01.2021619.74 кб, pdf
- Разрешение на строительство 77-235000-019305-2020, корпус 2 24.12.20201.33 мб, pdf
- Схема планировочной организации земельного участка, корпус 2 15.09.20204.12 мб, pdf
- Градостроительный план земельного участка, корпус 2 03.09.20201.99 мб, pdf
- Экспертиза проектной документации, корпус 2 09.07.2020900.44 кб, pdf
- Проектная декларация № 77-002155, корпус 1 09.03.2023961.08 кб, pdf
- Разрешение на ввод 77-18-011290-2023, корпус 1 20.02.2023181.67 кб, pdf
- Проект договора участия в долевом строительстве, корпус 1 09.09.2022730.82 кб, pdf
- Извещение о начале строительства, корпус 1 08.02.2021848.35 кб, pdf
- Информация о выданных заключениях о соответствии застройщика и проектной декларации требованиям 214-ФЗ 77-002155 ЗОС/150/77-002155, корпус 1 14.01.2021619.74 кб, pdf
- Разрешение на строительство 77-235000-019305-2020, корпус 1 24.12.20201.33 мб, pdf
- Схема планировочной организации земельного участка, корпус 1 15.09.20204.12 мб, pdf
- Градостроительный план земельного участка, корпус 1 03.09.20201.99 мб, pdf
- Экспертиза проектной документации, корпус 1 09.07.2020900.44 кб, pdf

































