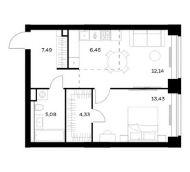
1-Комнатная квартира, 48.93 м², ID 704465
Обновлено Вчера, 18:42
51 543 320 ₽
1 053 409 ₽ / м2
Расположение
Описание
Однокомнатная квартира, 48.93 м2 в ЖК НОВА от
Продается 1-комн. квартира в новостройке ЖК НОВА стоимостью 51 543 320 руб, по адресу Москва, Западный (ЗАО), Раменки, ул Братьев Фонченко, д 19. Застройщик Группа "Самолет". Квартира сдается в 4 квартале 2027 года с черновой отделкой, в 20 минутах пешком от станции метро Минская. Общая площадь квартиры - 48.93 кв. м. Этаж 29 из 40. ID квартиры на СтройкиРУ 704465, скажите его когда будете звонить.
Подробнее о ЖК НОВА
Особенности
Ход строительства
1 упоминание о ЖК НОВА в наших материалах



















