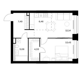
1-Комнатная квартира, 48.93 м², ID 704456
Обновлено Вчера, 18:42
50 184 984 ₽
1 025 649 ₽ / м2
Расположение
Описание
Однокомнатная квартира, 48.93 м2 в ЖК НОВА от
Продается 1-комн. квартира в новостройке ЖК НОВА стоимостью 50 184 984 руб, по адресу Москва, Западный (ЗАО), Раменки, ул Братьев Фонченко, д 19. Застройщик Группа "Самолет". Квартира сдается в 4 квартале 2027 года с черновой отделкой, в 20 минутах пешком от станции метро Минская. Общая площадь квартиры - 48.93 кв. м. Этаж 28 из 40. ID квартиры на СтройкиРУ 704456, скажите его когда будете звонить.
Подробнее о ЖК НОВА
Особенности
Ход строительства
1 упоминание о ЖК НОВА в наших материалах



















