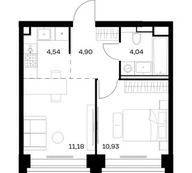
1-Комнатная квартира, 35.59 м², ID 704335
Обновлено Сегодня, 06:22
32 568 614 ₽
915 106 ₽ / м2
Расположение
Описание
Однокомнатная квартира, 35.59 м2 в ЖК НОВА от
Продается однокомнатная квартира в новостройке ЖК НОВА за 32 568 614 р, находящаяся по адресу Москва, Западный (ЗАО), Раменки, ул Братьев Фонченко, д 19. Застройщик дома Группа "Самолет". Квартира сдается в IV квартале 2027 года с черновой отделкой, в 20 минутах пешком от станции метрополитена Минская. Общая площадь квартиры - 35.59 м². Этаж 2 из 40. ID квартиры на СтройкиРУ 704335, назовите его когда будете звонить.
Подробнее о ЖК НОВА
Особенности
Ход строительства
1 упоминание о ЖК НОВА в наших материалах



















