2-Комнатная квартира, 51.9 м², ID 702436
Обновлено Вчера, 19:14
16 029 419 ₽
308 852 ₽ / м2
- Срок сдачи
- III квартал 2026
- Застройщик
- нет данных
- Общая площадь
- 51.9 м2
- Жилая площадь
- 32.39 м2
- Площадь кухни
- 51.9 м2
- Этаж
- 5 из 17
- Отделка
- Черновая
- ID
- 702436
Расположение
Описание
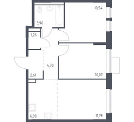
Двухкомнатная квартира, 51.9 м2 в ЖК Молжаниново от
Продается 2-комн. квартира в новостройке ЖК Молжаниново по цене 16 029 419 руб, расположенная по адресу Москва, Северный (САО), Молжаниновский, Ленинградское шоссе. Застройщик Группа "Самолет". Квартира сдается в 3 квартале 2026 года с черновой отделкой, в 20 минутах на машине от метро Речной вокзал. Общая площадь квартиры - 51.9 кв. м. Этаж 5 из 17. ID квартиры на СтройкиРУ 702436, сообщите его когда будете звонить.
Подробнее о ЖК Молжаниново
Особенности
Ход строительства
Документация
- Проектная декларация № 77-002762, корпус 3 06.06.2023553.68 кб, pdf
- Проект договора участия в долевом строительстве, корпус 3 06.06.2023267.19 кб, pdf
- Извещение о начале строительства, корпус 3 17.10.2022224.29 кб, pdf
- Схема планировочной организации земельного участка, корпус 3 13.10.202237.82 мб, pdf
- Градостроительный план земельного участка, корпус 3 13.10.20221.74 мб, pdf
- Разрешение на строительство 77-09-020458-2022, корпус 3 29.09.2022173.21 кб, pdf
- Экспертиза проектной документации, корпус 3 01.09.20221.05 мб, pdf
- Проектная декларация № 77-002443, корпус 2 06.06.2023663.27 кб, pdf
- Проект договора участия в долевом строительстве, корпус 2 06.06.2023267.19 кб, pdf
- Извещение о начале строительства, корпус 2 04.03.20221.95 мб, pdf
- Градостроительный план земельного участка, корпус 2 24.02.20222.58 мб, pdf
- Схема планировочной организации земельного участка, корпус 2 24.02.202230.40 мб, pdf
- Разрешение на строительство 77-160000-020047-2022, корпус 2 24.02.20221.66 мб, pdf
- Экспертиза проектной документации, корпус 2 06.09.2021403.90 кб, pdf
- Проект договора участия в долевом строительстве, корпус 1 06.06.2023267.19 кб, pdf
- Проектная декларация № 77-002441, корпус 1 06.06.2023640.73 кб, pdf
- Извещение о начале строительства, корпус 1 04.03.20221.95 мб, pdf
- Схема планировочной организации земельного участка, корпус 1 27.02.202230.80 мб, pdf
- Разрешение на строительство 77-160000-020049-2022, корпус 1 25.02.20221.76 мб, pdf
- Градостроительный план земельного участка, корпус 1 24.02.20222.58 мб, pdf
- Экспертиза проектной документации, корпус 1 01.09.20211.75 мб, pdf
1 упоминание о ЖК Молжаниново в наших материалах

























