1-Комнатная квартира, 32.2 м², ID 507252
Обновлено 5 дня назад
18 483 000 ₽
574 006 ₽ / м2
- Срок сдачи
- I квартал 2028
- Застройщик
- нет данных
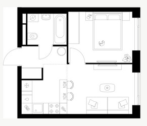
- Общая площадь
- 32.2 м2
- Жилая площадь
- 9.7 м2
- Площадь кухни
- 15.6 м2
- Высота потолков
- 2.62 м
- Этаж
- 2 из 33
- Корпус
- 4.3
- Отделка
- Чистовая
- Санузел
- Совмещенный
- ID
- 507252
Расположение
Описание
Однокомнатная квартира, 32.2 м2 в ЖК Мичуринский Парк от
Продается однокомнатная квартира в новостройке ЖК Мичуринский Парк за 18 483 000 рублей, находящаяся по адресу Москва, Западный (ЗАО), Очаково-Матвеевское, ул Озёрная, д 44А. Компания застройщик «ПИК». Квартира сдается в I квартале 2028 года с чистовой отделкой, в 5 минутах пешком от станции метрополитена Озерная. Общая площадь квартиры - 32.2 м². Этаж 2. ID квартиры на СтройкиРУ 507252, назовите его когда будете звонить.
































