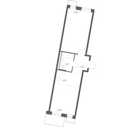
1-Комнатная квартира, 48.1 м², ID 703656
Обновлено Сегодня, 15:48
12 384 740 ₽
257 479 ₽ / м2
- Срок сдачи
- II квартал 2027
- Застройщик
- нет данных
- Общая площадь
- 48.1 м2
- Жилая площадь
- 33.05 м2
- Площадь кухни
- 48.1 м2
- Этаж
- 11 из 7
- Отделка
- Черновая
- ID
- 703656
Расположение
Описание
Однокомнатная квартира, 48.1 м2 в ЖК Квартал Западный от
Продается 1-комн. квартира в новостройке ЖК Квартал Западный стоимостью 12 384 740 ₽, по адресу Москва, Новомосковский (НАО), Марушкинское, хутор Санино. Строится компанией Группа "Самолет". Квартира сдается в 2 квартале 2027 года с черновой отделкой, в 23 минутах на машине от станции метро Рассказовка. Общая площадь квартиры - 48.1 кв. м. Этаж 11 из 14. ID квартиры на СтройкиРУ 703656, скажите его когда будете звонить.
Подробнее о ЖК Квартал Западный
Особенности
Ход строительства
Документация
- Проектная декларация № 77-002817, корпус 2 07.06.2023529.74 кб, pdf
- Проект договора участия в долевом строительстве, корпус 2 06.06.2023283.55 кб, pdf
- Извещение о начале строительства, корпус 2 13.02.2023111.92 кб, pdf
- Схема планировочной организации земельного участка, корпус 2 29.01.202329.25 мб, pdf
- Градостроительный план земельного участка, корпус 2 28.01.20232.43 мб, pdf
- Разрешение на строительство 77-18-020646-2023, корпус 2 27.01.2023101.02 кб, pdf
- Экспертиза проектной документации, корпус 2 30.12.20221.77 мб, pdf
- Проектная декларация № 77-002817, корпус 1 07.06.2023529.74 кб, pdf
- Проект договора участия в долевом строительстве, корпус 1 06.06.2023283.55 кб, pdf
- Извещение о начале строительства, корпус 1 13.02.2023111.92 кб, pdf
- Схема планировочной организации земельного участка, корпус 1 29.01.202329.25 мб, pdf
- Градостроительный план земельного участка, корпус 1 28.01.20232.43 мб, pdf
- Разрешение на строительство 77-18-020646-2023, корпус 1 27.01.2023101.02 кб, pdf
- Экспертиза проектной документации, корпус 1 30.12.20221.77 мб, pdf



















