2-Комнатная квартира, 57 м², ID 286212
Обновлено Сегодня, 05:49
37 820 000 ₽
663 509 ₽ / м2
- Срок сдачи
- II квартал 2026
- Застройщик
- нет данных
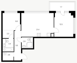
- Общая площадь
- 57 м2
- Жилая площадь
- 26.1 м2
- Площадь кухни
- 18.6 м2
- Высота потолков
- 2.66 м
- Этаж
- 23 из 30
- Корпус
- 3
- Отделка
- Чистовая
- Санузел
- Раздельный
- ID
- 286212
Расположение
Описание
Двухкомнатная квартира, 57 м2 в ЖК Кутузовский квартал от
Продается двухкомнатная квартира в новостройке ЖК Кутузовский квартал по цене 37 820 000 рублей, расположенная по адресу Москва, Западный (ЗАО), Кунцево, ул Ивана Франко. Компания застройщик «ПИК». Квартира сдается в II квартале 2026 года с чистовой отделкой, в 10 минутах пешком от метро Кунцевская. Общая площадь квартиры - 57 м². Этаж 23. ID квартиры на СтройкиРУ 286212, сообщите его когда будете звонить.




























