Реклама. Застройщик

Проектная декларация на наш.дом.рф. Токен: 2SDnjewfm2q.

Поствью

Реклама. Застройщик LEGENDA Intelligent Development

Проектная декларация на наш.дом.рф. Токен: 2SDnjewfm2q.

LEGENDA Intelligent DevelopmentПоствью

Реклама. Застройщик LEGENDA Intelligent Development

Проектная декларация на наш.дом.рф. Токен: 2SDnjewfm2q.

LEGENDA Intelligent DevelopmentПоствью

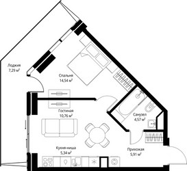
1-Комнатная квартира, 48.41 м², ID 738082

38 311 672 ₽

791 400 ₽ / м2

Срок сдачи
IV квартал 2027
Застройщик
нет данных
Общая площадь
48.41 м2
Жилая площадь
14.54 м2
Площадь кухни
48.41 м2
Этаж
10 из 56
Отделка
не указана
ID
738082

Описание

Однокомнатная квартира, 48.41 м2 в ЖК Джойс от

Продается 1-комн. квартира в новостройке ЖК Джойс по цене 38 311 672 ₽, расположенная по адресу Москва, Северо-Западный (СЗАО), Хорошёво-Мнёвники, 3-й Силикатный проезд, д 10. Строится компанией MR Group. Квартира сдается в 4 квартале 2027 года в 20 минутах пешком от метро Народное ополчение. Общая площадь квартиры - 48.41 кв. м. Этаж 10 из 55. ID квартиры на СтройкиРУ 738082, сообщите его когда будете звонить.

Подробнее о ЖК Джойс

“Джойс” - жилой комплекс премиум-класса в Северо-западном округе Москвы, в районе Хорошёво-Мнёвники. Архитектура жилого комплекса разработана бюро GENPRO, лауреата главных премий в области дизайна. Комплекс представляет собой 4 корпуса-башни ступенчатой формы, которые подчеркивают виды на исторические достопримечательности города и парки на западе столицы. Застройщик предлагает к покупке студии, однокомнатные, двухкомнатные и трехкомнатные квартиры. Среди лотов имеются квартиры с лоджиями и террасами, а также пентхаусы с сауной. Площадь жилья варьируется от 22,7 м2 до 84,4 м2, высота потолков - до 6 метров. Инфраструктура и благоустройство До станции МЦК “Хорошёво” пешком всего 5 минут пешком, до станций метро “Народное ополчение” и “Полежаевская” - 20 минут. Для автомобилистов есть прямой выезд на Хорошёвское шоссе, по которому можно за 10 минут добраться до Третьего транспортного кольца. До Красной площади ехать примерно 30 минут, до Садового кольца - 25 минут На территории ЖК фитнес-центр с бассейном и джакузи, коворкинг и лаундж-зоны, общественная гостиная с мини-кухнями. Имеются игровые комнаты для детей. Также внутри ЖК рестораны, магазины и бытовые сервисы Приватная инфраструктура для жизни внутри комплекса: зоны для отдыха, детские площадки, зоны для пикника и возможность прогулок у воды Пешеходный бульвар вдоль территории комплекса, который подогревается в зимний период, всесезонное озеленение и площадка для выгула собак Наличие приватных террас, двухуровневых пентхаусов с потолками до 6 метров, панорамное остекление в квартирах Охраняемая закрытая территория и консьерж-сервис 24/7 Отдельный вход для курьеров, сотрудников УК, клининговых компаний и строителей В радиусе километра несколько муниципальных и частных детских садов и школ, в шаговой доступности супермаркеты и ТРЦ “Авиапарк” Двухуровневый подземный паркинг для удобства автовладельцев. Страница ЖК >>
Застройщик %_NAME_% Застройщик %_NAME_%
%_YEAR_%Год основания
99Сдано корпусов в 9 ЖК
999Строится корпусов в 99 ЖК

Жилые комплексы от

Ход строительства

Популярные жилые комплексы

    Похожие квартиры

    Однокомнатная квартира, 48.41 м2

    38 311 672 ₽

    791 400 ₽ / м2

    Срок сдачи IV кв. 2027

    Застройщик

    Количество объектов:

    Застройщик %_NAME_%
    Показать телефон

    Застройщик