Реклама. Застройщик

Проектная декларация на наш.дом.рф. Токен: 2SDnjewfm2q.

Поствью

Реклама. Застройщик LEGENDA Intelligent Development

Проектная декларация на наш.дом.рф. Токен: 2SDnjewfm2q.

LEGENDA Intelligent DevelopmentПоствью

Реклама. Застройщик LEGENDA Intelligent Development

Проектная декларация на наш.дом.рф. Токен: 2SDnjewfm2q.

LEGENDA Intelligent DevelopmentПоствью

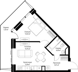
1-Комнатная квартира, 48.42 м², ID 738060

32 584 916 ₽

672 964 ₽ / м2

Срок сдачи
IV квартал 2027
Застройщик
нет данных
Общая площадь
48.42 м2
Жилая площадь
14.54 м2
Площадь кухни
48.42 м2
Этаж
8 из 56
Отделка
не указана
ID
738060

Описание

Однокомнатная квартира, 48.42 м2 в ЖК Джойс от

Продается однокомнатная квартира в новостройке ЖК Джойс стоимостью 32 584 916 рублей, по адресу Москва, Северо-Западный (СЗАО), Хорошёво-Мнёвники, 3-й Силикатный проезд, д 10. Компания застройщик MR Group. Квартира сдается в IV квартале 2027 года в 20 минутах пешком от станции метро Народное ополчение. Общая площадь квартиры - 48.42 м². Этаж 8 из 55. ID квартиры на СтройкиРУ 738060, скажите его когда будете звонить.

Подробнее о ЖК Джойс

“Джойс” - жилой комплекс премиум-класса в Северо-западном округе Москвы, в районе Хорошёво-Мнёвники. Архитектура жилого комплекса разработана бюро GENPRO, лауреата главных премий в области дизайна. Комплекс представляет собой 4 корпуса-башни ступенчатой формы, которые подчеркивают виды на исторические достопримечательности города и парки на западе столицы. Застройщик предлагает к покупке студии, однокомнатные, двухкомнатные и трехкомнатные квартиры. Среди лотов имеются квартиры с лоджиями и террасами, а также пентхаусы с сауной. Площадь жилья варьируется от 22,7 м2 до 84,4 м2, высота потолков - до 6 метров. Инфраструктура и благоустройство До станции МЦК “Хорошёво” пешком всего 5 минут пешком, до станций метро “Народное ополчение” и “Полежаевская” - 20 минут. Для автомобилистов есть прямой выезд на Хорошёвское шоссе, по которому можно за 10 минут добраться до Третьего транспортного кольца. До Красной площади ехать примерно 30 минут, до Садового кольца - 25 минут На территории ЖК фитнес-центр с бассейном и джакузи, коворкинг и лаундж-зоны, общественная гостиная с мини-кухнями. Имеются игровые комнаты для детей. Также внутри ЖК рестораны, магазины и бытовые сервисы Приватная инфраструктура для жизни внутри комплекса: зоны для отдыха, детские площадки, зоны для пикника и возможность прогулок у воды Пешеходный бульвар вдоль территории комплекса, который подогревается в зимний период, всесезонное озеленение и площадка для выгула собак Наличие приватных террас, двухуровневых пентхаусов с потолками до 6 метров, панорамное остекление в квартирах Охраняемая закрытая территория и консьерж-сервис 24/7 Отдельный вход для курьеров, сотрудников УК, клининговых компаний и строителей В радиусе километра несколько муниципальных и частных детских садов и школ, в шаговой доступности супермаркеты и ТРЦ “Авиапарк” Двухуровневый подземный паркинг для удобства автовладельцев. Страница ЖК >>
Застройщик %_NAME_% Застройщик %_NAME_%
%_YEAR_%Год основания
99Сдано корпусов в 9 ЖК
999Строится корпусов в 99 ЖК

Жилые комплексы от

Ход строительства

Популярные жилые комплексы

    Похожие квартиры

    Однокомнатная квартира, 48.42 м2

    32 584 916 ₽

    672 964 ₽ / м2

    Срок сдачи IV кв. 2027

    Застройщик

    Количество объектов:

    Застройщик %_NAME_%
    Показать телефон

    Застройщик