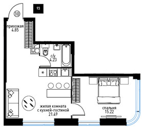
2-Комнатная квартира, 45.7 м², ID 213944
Обновлено Позавчера
32 261 000 ₽
705 930 ₽ / м2
- Срок сдачи
- I квартал 2026
- Застройщик
- нет данных
- Общая площадь
- 45.7 м2
- Жилая площадь
- 15.22 м2
- Площадь кухни
- 21.49 м2
- Высота потолков
- 3.1 м
- Этаж
- 19 из 28
- Корпус
- башня А
- Отделка
- Черновая
- Санузел
- Раздельный
- ID
- 213944
Расположение
Описание
Двухкомнатная квартира, 45.7 м2 в ЖК Инноватор от
Продается двухкомнатная квартира в новостройке ЖК Инноватор за 32 261 000 р, находящаяся по адресу Москва, Западный (ЗАО), Раменки, Мичуринский пр-кт, д 45А. Застройщик дома Мосреалстрой. Квартира сдается в I квартале 2026 года с черновой отделкой, в 5 минутах пешком от станции метрополитена Мичуринский проспект. Общая площадь квартиры - 45.7 м². Этаж 19. ID квартиры на СтройкиРУ 213944, назовите его когда будете звонить.
Подробнее о ЖК Инноватор
Особенности
Ход строительства
Документация
- Проектная декларация № 77-002230, корпус башня А 08.06.2023427.06 кб, pdf
- Экспертиза проектной документации, корпус башня А 14.12.20222.04 мб, pdf
- Проект договора участия в долевом строительстве, корпус башня А 21.12.202174.15 кб, pdf
- Извещение о начале строительства, корпус башня А 24.08.2021785.83 кб, pdf
- Информация о выданных заключениях о соответствии застройщика и проектной декларации требованиям 214-ФЗ 77-002230 ЗОС/210/77-002230, корпус башня А 28.04.2021615.11 кб, pdf
- Схема планировочной организации земельного участка, корпус башня А 15.01.20216.34 мб, pdf
- Разрешение на строительство 77-183000-019338-2021, корпус башня А 14.01.20211.12 мб, pdf
- Градостроительный план земельного участка, корпус башня А 23.12.20201.98 мб, pdf
- Проектная декларация № 77-002230, корпус башня Б 08.06.2023427.06 кб, pdf
- Экспертиза проектной документации, корпус башня Б 14.12.20222.04 мб, pdf
- Проект договора участия в долевом строительстве, корпус башня Б 21.12.202174.15 кб, pdf
- Извещение о начале строительства, корпус башня Б 24.08.2021785.83 кб, pdf
- Информация о выданных заключениях о соответствии застройщика и проектной декларации требованиям 214-ФЗ 77-002230 ЗОС/210/77-002230, корпус башня Б 28.04.2021615.11 кб, pdf
- Схема планировочной организации земельного участка, корпус башня Б 15.01.20216.34 мб, pdf
- Разрешение на строительство 77-183000-019338-2021, корпус башня Б 14.01.20211.12 мб, pdf
- Градостроительный план земельного участка, корпус башня Б 23.12.20201.98 мб, pdf
- Проектная декларация № 77-002230, корпус 2 08.06.2023427.06 кб, pdf
- Экспертиза проектной документации, корпус 2 14.12.20222.04 мб, pdf
- Проект договора участия в долевом строительстве, корпус 2 21.12.202174.15 кб, pdf
- Извещение о начале строительства, корпус 2 24.08.2021785.83 кб, pdf
- Информация о выданных заключениях о соответствии застройщика и проектной декларации требованиям 214-ФЗ 77-002230 ЗОС/210/77-002230, корпус 2 28.04.2021615.11 кб, pdf
- Схема планировочной организации земельного участка, корпус 2 15.01.20216.34 мб, pdf
- Разрешение на строительство 77-183000-019338-2021, корпус 2 14.01.20211.12 мб, pdf
- Градостроительный план земельного участка, корпус 2 23.12.20201.98 мб, pdf
- Проектная декларация № 77-002230, корпус 1 08.06.2023427.06 кб, pdf
- Экспертиза проектной документации, корпус 1 14.12.20222.04 мб, pdf
- Проект договора участия в долевом строительстве, корпус 1 21.12.202174.15 кб, pdf
- Извещение о начале строительства, корпус 1 24.08.2021785.83 кб, pdf
- Информация о выданных заключениях о соответствии застройщика и проектной декларации требованиям 214-ФЗ 77-002230 ЗОС/210/77-002230, корпус 1 28.04.2021615.11 кб, pdf
- Схема планировочной организации земельного участка, корпус 1 15.01.20216.34 мб, pdf
- Разрешение на строительство 77-183000-019338-2021, корпус 1 14.01.20211.12 мб, pdf
- Градостроительный план земельного участка, корпус 1 23.12.20201.98 мб, pdf





















